MON BIEN A LA MER, Spécialiste de l'immobilier neuf en Bord de Mer vous présente :
Superbe emplacement pour cette petite résidence neuve à BLONVILLE SUR MER. 3 min à pied de la Plage et des commerces, hyper centre. Pour certains logements vue mer. 6 min en voiture de DEAUVILLE.
Cette petite résidence de standing vous offre de belles prestations et s'insère harmonieusement dans son environnement. Ascenseur. Frais de notaire réduits. Pompe à chaleur, possibilité bornes électriques. Livraison printemps 2028.
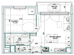
Joli T2 au 2è étage sur cour, en retrait de la rue, comprenant : - Séjour avec balcon - Chambre avec placard - Salle d'eau douche à l'italienne - Wc séparés - Parking inclus
Nous consulter.
Honoraires à la charge du vendeur. Non soumis au DPE. Les informations sur les risques auxquels ce bien est exposé sont disponibles sur le site Géorisques : georisques.gouv.fr.
Votre conseiller MON BIEN A LA MER : Gérant - .fr MON BIEN A LA MER Carte T CPI 2201 2018 000 025 040 RCP ACM IARD B1 7025278
38.74 m²
6 066 €
5 m²
2
1
1
1 (séparé)
2 sur 4
1 (5 m²)
Oui
Oui
21
Contact mon bien à la mer
Contacter gratuitement à l'aide du formulaire ci-dessous.