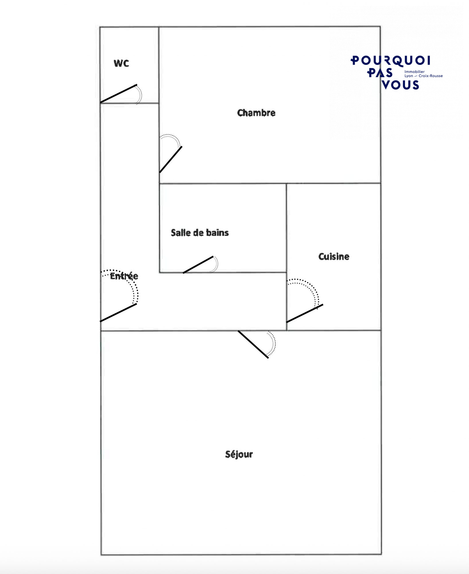
À Villeurbanne, découvrez ce beau T2 de 47 m² entièrement rénové avec soin. Situé au 2ème étage d'un immeuble de 5 étages, il offre une entrée avec rangements, une cuisine ouverte sur un séjour lumineux exposé plein sud, une chambre avec placard, une salle d'eau et un WC indépendant.
Idéalement situé, l'appartement bénéficie de la proximité immédiate des commerces et des transports en commun, notamment le T6 (desservant Gratte-Ciel, la DOUA, les IUT ainsi que les HCL de Bron et Lyon 7 Debourg) et le bus C23.
Informations pratiques : - Charges de copropriété : environ 90 /mois (entretien des parties communes, eau froide et fonds de travaux inclus) - Taxe foncière : 1 038 /an - Pas de procédure en cours - Belle hauteur sous plafond
Pour plus d'informations, contactez Clara SENTIS, agent commercial (RSAC 918 907 189) : ? 06 30 56 04 65 ? c.sentis@pietrapolis.fr
Honoraires à la charge du vendeur. Dans une copropriété de 20 lots. Aucune procédure n'est en cours. Classe énergie D, Classe climat B Montant estimé des dépenses annuelles d'énergie pour un usage standard : entre 1070.00 et 1448.00 sur les années 2021, 2022 et 2023 (abonnements compris). Les informations sur les risques auxquels ce bien est exposé sont disponibles sur le site Géorisques : georisques.gouv.fr.