L'agence 'MON BIEN A LA MER', spécialiste de l'immobilier neuf sur les côtes Bretonnes, vous présente :
Très rare : Nouvelle réalisation en plein centre de LANNION : à pied de tous commerces, 7 min à pied de la Gare. Nouveau : Résidence de standing en construction pour fin 2027, normes RE2020, Ascenseur, Frais de notaire réduits.
Au pied de la résidence : jardin collectif pour les résidents clos de mur 1000m2. Un havre de paix en plein centre ville! A 10 min en voiture des merveilleuses plages de la côte de Granit Rose. En lot arrière, au calme.
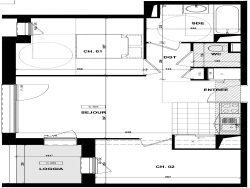
Ce T3 est situé au 3è étage et comprend : - Séjour 21,2m2 donnant sur une loggia de 1,81*2,2m - Deux chambres 11-9,15m2, salle de bains, wc séparés, placards, - loggia 3,95m2 s'ouvrant sur séjour et chambre - Parking et cave inclus.
Possibilité modification de plans intérieurs.
Nous consulter.
Honoraires à la charge du vendeur. Non soumis au DPE. Les informations sur les risques auxquels ce bien est exposé sont disponibles sur le site Géorisques : georisques.gouv.fr.
Votre conseiller MON BIEN A LA MER : Gérant - .fr MON BIEN A LA MER Carte T CPI 2201 2018 000 025 040 RCP ACM IARD B1 7025278
52.35 m²
5 138 €
21 m²
3
2
1
1 (séparé)
3 sur 4
Oui
1
1
Oui
Contact mon bien à la mer
Contacter gratuitement à l'aide du formulaire ci-dessous.