Jolie maison de 125 m2 à Eréac (22) Un beau potentiel à exploiter
Éréac 22250
0
Aurélie Hamelin vous propose ce bien :
Située dans un environnement calme et exposée plein sud, cette maison de 125 m² est idéale pour un jeune couple avec ou sans enfants.
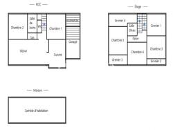
Habitable de suite, elle offre un bel espace de vie avec un salon-séjour de près de 49 m² agrémenté d'une cheminée avec insert . La cuisine ouverte est attenante au garage et sa buanderie.
Côté nuit, elle propose deux chambres au rez-de-chaussée dont une suite parentale avec sa salle de bain.
A l'étage, trois autres chambres, une salle d'eau et plusieurs greniers aménageables complètent l'espace. Le parquet ancien à l'étage apporte du caractère.
Côté confort, la maison est équipée du double vitrage en bas, de volets électriques, d'un store-banne pour profiter pleinement du sud, d'un ballon thermodynamique et d'une pompe à chaleur récents. Assainissement aux normes
Des travaux de rénovation permettront d'exploiter tout son potentiel. En définitive, une maison qui ne demande qu'à être personnalisée selon vos envies.
Éréac est une commune rurale bretonne offrant un cadre de vie paisible et authentique qui dispose de services de proximité tels qu'une maison médicale, une pharmacie et une école communale, assurant un quotidien pratique et agréable
Vidéo transmise sur simple demande
Contactez-moi pour une visite 7j/7 !nLes informations sur les risques auxquels ce bien est exposé sont disponibles sur le site Géorisques : www.georisques.gouv.fr
125 m²
1 359 €
920 m²
6
5
2
1
2
1975
Consommations énergétiques
Logement économe
231
Logement énergivore (kWhEP/m2/an)
Émissions de gaz à effet de serre
Faible émission de GES
7
Forte émission de GES(kgeqCO2/m2/an)
Contact Iad France - Aurélie HAMELIN
Contacter gratuitement à l'aide du formulaire ci-dessous.