LE CALME ET LA VERDURE AU CENTRE-VILLE - TERRASSE EXPO SUD
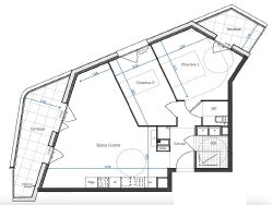
Idéalement situé, à proximité de la mairie, de son parc arboré et au sein d'une jolie résidence à taille humaine, venez découvrir ce bel appartement T3 de 64m2.
Il se compose d'une entrée avec placard donnant accès à une spacieuse pièce de vie de 33m2, très lumineuse grâce à ses deux ouvertures sur sa jolie terrasse de 26m2. Côté nuit, vous disposerez de deux chambres, une salle d'eau avec double vasque ainsi qu'un WC indépendant.
Une place de parking sécurisée en sous-sol complètent ce bien en sus obligatoire (20 000).
- Frais de notaire OFFERTS - Garanties - Exonération de Taxe Foncière - Normes RE 2020 - ...
*Visuel non contractuel
LE CALME ET LA VERDURE AU CENTRE-VILLE - TERRASSE EXPO SUD
Honoraires à la charge du vendeur. Dans une copropriété de 43 lots. Aucune procédure n'est en cours. DPE en cours. Les informations sur les risques auxquels ce bien est exposé sont disponibles sur le site Géorisques : georisques.gouv.fr.