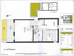
Kembs Appartement 3 pièces de 65 m² comprenant une entrée, un salon séjour de 28 m² ouvert sur une cuisine donnant accès à une terrasse de 10 m² et à un jardin de 79 m², 2 chambres, une salle de bains équipée et un wc séparé. Pour plus d'informations, contactez-nous au +33 (0)3 89 89 72 30 ou sur info@staubimmo.com Suivez-nous sur Facebook, Instagram et YouTube pour découvrir nos dernières nouveautés. 2 agences à votre service STAUB IMMOBILIER 68300 SAINT-LOUIS et 68870 BARTENHEIM - www.staubimmo.com
Honoraires à la charge du vendeur. Non soumis au DPE. Les informations sur les risques auxquels ce bien est exposé sont disponibles sur le site Géorisques : georisques.gouv.fr. . Suivez-nous sur Facebook, Instagram et YouTube pour découvrir nos dernières nouveautés. 2 agences à votre service STAUB IMMOBILIER 68300 SAINT-LOUIS / BASEL et 68870 BARTENHEIM
65 m²
3 831 €
3
2
1
1
2023
Oui
1
Contact Staub Immobilier
Contacter gratuitement à l'aide du formulaire ci-dessous.