La part des honoraires pour la réalisation de létat des lieux de ce bien est de 219 euros.
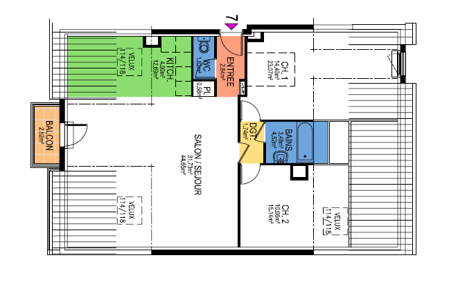
KONACKER / HAYANGE L'agence OPEN IMMOBILIER vous propose ce bel appartement de type F4, situé au 2ieme et dernier étage de la résidence. Ce sympathique appartement offre une superficie habitable totale de 73m2 carrez( 90m2 au sol) et se compose principalement comme suit : une entrée,un spacieux espace de vie composé d'un salon/séjour et d'une cuisine américaine équipée, le tout accédant directement à la terrasse, deux chambres à coucher , une salle de bains et un WC séparé. DPE: C Loyer : 1000 EUR Charges : 50 EUR ** TOTAL : 1050 EUR / mois ** Dépôt de garantie : 1000 EUR (soit un mois de loyer hors charges) Conformément à la loi ALUR Honoraires Agence :803.00 EUR TTC (Visite, constitution du dossier et rédaction du bail : 8EUR TTC / M2 soit 544.00 EUR et Etat des lieux d'entrée : 3EUR TTC / M2 soit 219.00 EUR) Pour plus de renseignements, nous consulter ! Agence Open Immobilier à THIONVILLE M. ULAS GSM: 0663177542 Fixe: 03 82 54 73 57 www.open57.fr
73 m²
4
2
1
3
803 %
50 € / mois
2010
Sud
Ouest
Oui
1
Oui (53 lots)
Consommations énergétiques
Logement économe
163
Logement énergivore (kWhEP/m2/an)
Émissions de gaz à effet de serre
Faible émission de GES
6
Forte émission de GES(kgeqCO2/m2/an)
Contact ULAS Unal
Contacter gratuitement à l'aide du formulaire ci-dessous.