L'Écrin Suspendu : Douceur de Vivre et Ciel Ouvert au Coeur de
Saint-Médard-en-Jalles 33160
0
Honoraires à la charge du vendeur.
SUPERBE T4 EN ATTIQUE AVEC VASTE TERRASSE / PARKING / ASCENSEUR
C'est au coeur de son centre-ville dans une résidence à taille humaine, à deux pas de l'église, que se niche votre appartement et son îlot arboré, une situation idéale à proximité immédiate des commerces, des écoles, des services de santé et des équipements culturels.
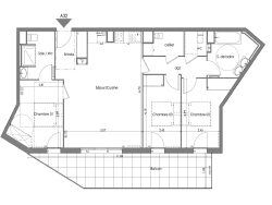
Il offre une surface habitable totale de 90 m² comprenant une entrée de 5 m² qui s'ouvre sur une vaste pièce de vie réunissant le séjour et la cuisine de 31 m². L'espace nuit, distribué par un dégagement de 5 m² , se compose de trois chambres (dont une suite) mesurant respectivement 12 m² , 11 m² et 11 m². Pour compléter cet aménagement, le logement dispose d'une salle d'eau avec WC de 6 m² , d'une salle de bains indépendante de 7 m² , de WC séparés de 3 m² et d'un cellier de 4 m². Enfin, une terrasse ensoleillée de 21 m² vient prolonger agréablement ce bien vers l'extérieur.
L'appartement bénéficie de plusieurs placards intégrés. Vous en trouverez un premier situé directement dans l'entrée. L'espace nuit est également bien optimisé, puisque chacune des trois chambres (Chambre 01, Chambre 02 et Chambre 03) est pourvue d'un emplacement dédié pour un placard. Ces espaces de rangement viennent s'ajouter au cellier indépendant qui offre un volume de stockage supplémentaire.
Un appartement spacieux et confortable en plein coeur du centre-ville, pour faire de chaque journée un moment privilégié avec votre famille.
Deux places de parking (en SUS obligatoires 30 000) complètent ce bien.
- Aucun travaux à prévoir - Frais de Notaires Réduits - Garanties - RT 2012 - Très Prochainement Disponible - ...
Visuel non contractuel suggestion d'aménagement
SUPERBE T4 EN ATTIQUE AVEC VASTE TERRASSE / PARKING / ASCENSEUR
Honoraires à la charge du vendeur. Dans une copropriété de 43 lots. Aucune procédure n'est en cours. DPE en cours. Les informations sur les risques auxquels ce bien est exposé sont disponibles sur le site Géorisques : georisques.gouv.fr.