La Chaume - Maison de plain-pied 106 m2 Rénovation intég
Les Sables-d'Olonne 85100
0
Honoraires à la charge du vendeur.
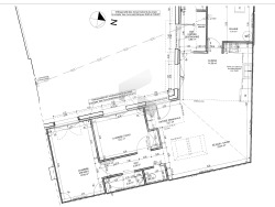
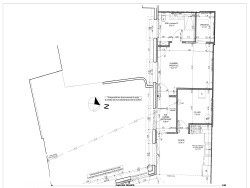
Entièrement rénovée avec soin et matériaux de haute qualité (toiture, isolation, menuiseries, électricité, plomberie...), située au coeur du quartier recherché de La Chaume, dans une rue paisible tout en restant à quelques pas du quai, des commerces et des commodités, cette maison de plain-pied offre un cadre de vie privilégié où confort moderne et opportunité patrimoniale se rejoignent. L'espace intérieur s'articule autour d'une vaste pièce de vie très lumineuse (40 m2) avec cuisine ouverte équipée et son accès à un cellier / buanderie (7,40 m2). Deux chambres (9,30 m2 et 13,60 m2) une salle d'eau, un wc ainsi qu'une suite parentale (15 m2 + salle d'eau/wc 6,5 m2 + dressing 3 m2) complètent cette maison. Cette suite est un atout majeur car elle bénéficie d'un accès privé, les arrivées sont prévues pour un coin cuisine et peut donc être transformée en studio indépendant pour un rendement locatif attractif. À l'extérieur, le charme opère également avec un espace jardin intime et facile à entretenir avec une terrasse en bois exotique. Une dépendance de 11 m2 pouvant accueillir selon vos besoins vélos, affaires de plage, espace de loisirs, atelier... et une place de stationnement sont associées à ce bien rare. Habitation à l'état récent et vide de tout contenu : les six premières photos ont été retravaillées avec projection d'aménagement. Entre vie à l'année et investissement judicieux, cette maison conjugue avec subtilité cadre de vie apaisant, emplacement privilégié et potentiel de valorisation. Visite sur rendez-vous, contactez-moi sans tarder ! - Annonce rédigée et publiée par un Agent Mandataire -
106 m²
4 670 €
40 m²
217 m²
5
3
2
2
1920
1
Consommations énergétiques
Logement économe
162
Logement énergivore (kWhEP/m2/an)
Émissions de gaz à effet de serre
Faible émission de GES
5
Forte émission de GES(kgeqCO2/m2/an)
Contact PRIEUR
Contacter gratuitement à l'aide du formulaire ci-dessous.