Au coeur du très recherché quartier des Chartrons, donnant sur les quais et son fleuve, cet appartement profite d'un environnement unique où se mêlent élégance, histoire et art de vivre bordelais. Ici, on flâne entre galeries d'art, antiquaires, tables réputées et promenades le long de la Garonne, dans un cadre à la fois vivant et sophistiqué. L'immeuble, en pierre de taille de 3 lots, s'inscrit dans une résidence de standing aux parties communes élégamment rénovées, offrant une atmosphère aussi prestigieuse que rassurante. La copropriété dispose également de locaux dédiés, avec un local vélos et un local poubelles, et bénéficie d'un équipement facilitant l'accessibilité, grâce à un monte-charge adapté aux personnes à mobilité réduite permettant l'accès au premier étage. Un emplacement rare, avec le fleuve pour voisin et la ville à vos pieds.
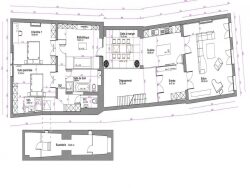
Situé dans un bel immeuble ancien, ce vaste appartement traversant a fait l'objet d'une rénovation complète aux prestations haut de gamme, alliant le charme de l'ancien au confort contemporain. Il s'ouvre sur un superbe espace de réception comprenant un salon lumineux d'environ 40 m² et une salle à manger sous verrière, baignée de lumière. La cuisine indépendante, parfaitement aménagée, conjugue élégance et fonctionnalité. Côté nuit, deux belles chambres dont une suite parentale avec salle d'eau, une grande pièce bibliothèque pouvant faire office de troisième chambre ou de bureau, une seconde salle de bain, des WC indépendants ainsi qu'une buanderie en sous-sol viennent parfaire l'ensemble. Les volumes généreux, la double exposition et les vues dégagées sur la Garonne offrent une luminosité et un confort de vie remarquables.
Ce bien incarne une opportunité rare pour les amateurs d'adresses prestigieuses et de biens de caractère. Que ce soit pour une résidence principale haut de gamme ou un investissement patrimonial d'exception, il réunit tous les atouts : emplacement iconique, vues spectaculaires, qualité de rénovation et élégance intemporelle. Un appartement pensé pour ceux qui recherchent un cadre de vie raffiné, lumineux et inspirant, au coeur de l'un des quartiers les plus emblématiques de Bordeaux.
UNE REHABILITATION D'EXCEPTION FACE À LA GARONNE
Honoraires à la charge du vendeur. Dans une copropriété de 3 lots. Aucune procédure n'est en cours. DPE en cours. Les informations sur les risques auxquels ce bien est exposé sont disponibles sur le site Géorisques : georisques.gouv.fr.