Les charges de location sont prévisionnelles mensuelles avec régularisation annuelle.
La part des honoraires pour la réalisation de létat des lieux de ce bien est de 202.05 euros.
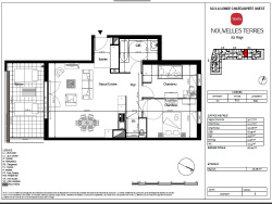
La Londe, à proximité du centre ville, dans une résidence récente avec piscine Appartement T3 Traversant au 03ème étage avec ascenseur d'une surface de 67.35m2 comprenant une entrée, une séjour cuisine aménagée et équipée ( plaque four et hotte ) de 34.16m2 ouvert sur une terrasse Exposée Sud de 15.51m2,une salle de bains, un wc indépendant et 2 chambres (11.10m2et 10.02m2 avec placard) Loué avec un stationnement privatif. Disponble le 01/04/2026 Dispositif PINEL Loyer mensuel : 928EUR Provision mensuelle de charges: 100EUR ( incluant eau froide et eau chaude) Dépôt de garantie : 928EUR Honoraires de visite, de constitution du dossier du locataire et de rédaction du bail : 8EUR TTC/m2 soit 538.79EUR ttc+ honoraires de réalisation de l'état des lieux d'entrée : 3 EUR TTC/m2 soit 202.04EUR ttc
67.35 m²
3
2
1
1
3
740.85 %
01/04/2026
100 € / mois
Oui
1
Oui
Consommations énergétiques
Logement économe
47
Logement énergivore (kWhEP/m2/an)
Émissions de gaz à effet de serre
Faible émission de GES
1
Forte émission de GES(kgeqCO2/m2/an)
Contact GLEIM
Contacter gratuitement à l'aide du formulaire ci-dessous.