Dans la commune de Montpellier, quartier LA MARTELLE, investissez dans votre premier logement avec ce T2 de 44 m2, bénéficiant d'un joli jardin de 50 m2 environ sans vis à vis agréable, ensoleillé avec une place de parking privé en extérieur.
Proche commerces, écoles et bus. Cet appartement situé dans dans une petite copropriété sera à rafraichir. Eau et chauffage individuels.
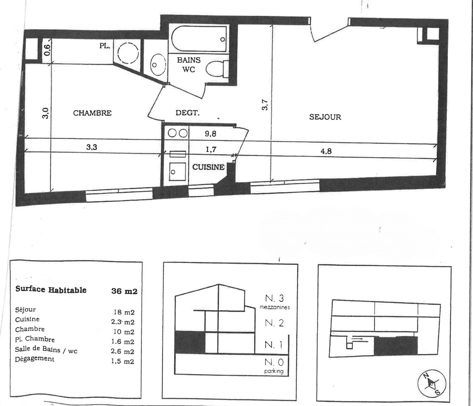
Il est composé d'une entrée avec placard, d'un WC séparé et d'une salle de bains, d'une chambre avec placard et d'une cuisine ouverte sur un salon.
Taxe Foncière : 1 081€
Bien soumis à la copropriété : 20 lots / Pas de procédure en cours sur le bâtiment
Charges Annuelles : 1 030 €
Prix de vente : 125 000€ net vendeur + 5,5% de frais d'agence, soit 131 875 € FAI
Honoraires charge acquéreur
Les informations sur les risques auxquels ce bien est exposé sont disponibles sur le site Géorisques http://www.georisques.gouv.fr
Contactez sans plus tarder R.IMMO Yolaine RIVIERE pour une visite des lieux.
- Bien soumis au DPE : Oui
- Bien en coproprieté : Oui
- Les informations sur les risques auxquels ce bien est exposé sont disponibles sur le site Géorisques du Gouvernement.
- Numéro de lot : 38
- Nombre de lots : 20
- La quote-part annuelle des charges payées par le vendeur (en euro) : 1036
- Soumis au statut de copropriété : Oui
- Copropriété fait l'objet d'un plan de sauvegarde : Non
- Syndicat est soumis à une procédure d'alerte ou de redressement : Non
- Prix de vente (TTC): 131875 euros*
- *Honoraires à Charge Acquéreur (%) : 5.5%
- *Honoraires à Charge Acquéreur (euro) :6875 €
- Cette présente annonce a été rédigée sous la responsabilité éditoriale de RIVIERE Yolaine |SARL (société à responsabilité limitée)| immatriculé au RSAC / SIRET : 884 518 671
44 m²
2 997 €
2
1
1
2006
Oui
Consommations énergétiques
Logement économe
178
Logement énergivore (kWhEP/m2/an)
Émissions de gaz à effet de serre
Faible émission de GES
5
Forte émission de GES(kgeqCO2/m2/an)
Contact YOLAINE R.Immo
Contacter gratuitement à l'aide du formulaire ci-dessous.