LA RICHARDAIS - Appartement 2 pièces de 42.05m² Sud - dernier étage - balcon 14.05m² - stationnements
La Richardais 35780
0
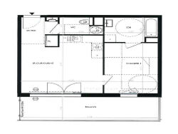
La Richardais - Appartement 2 pièces de 42.05m² Sud - 3ème et dernier étage - balcon 14.05m² - stationnements privatifs Dans un cadre de vie exceptionnel à deux pas des rives de la Rance, au coeur du village préservé de La Richardais, à proximité immédiate de Saint-Malo et Dinard et facilement accessible en voiture ou via les transports en commun, vous y trouverez tous les commerces, commodités et services du quotidien pour y vivre en résidence principale ou en secondaire. Au sein de cette résidence moderne, sécurisée et conforme aux dernières normes énergétiques, situé au 3ème étage avec ascenseur, cet appartement de 2 pièces de 42.05m² est exposé plein Sud. il se compose d'une entrée avec placard, d'un séjour lumineux avec cuisine ouverte donnant sur un balcon de 14.05 m², d'une chambre avec salle de bains privative, WC indépendant, ainsi que de deux stationnements privatifs. Que vous recherchiez une résidence principale, un pied-à-terre ou un investissement locatif, ce bien présente un fort potentiel patrimonial. Ses atouts : un cadre de vie paisible proche de la mer et de la Rance, un port de plaisance, des plages à proximité, et une offre complète de services : commerces de proximité, marché local, crèche, écoles, médiathèque, équipements sportifs et club de voile. Prix promoteur - frais de notaire réduits - Hautes performances énergétiques. Les informations sur les risques auxquels ce bien est exposé sont disponibles sur le site Géorisques : www.georisques.gouv.fr. Photos non contractuelles - Suggestions d'aménagements Copropriété de 17 lots - dont 17 lots habitation. (Pas de procédure en cours). Charges annuelles : 604 euros.