LA RICHARDAIS - Appartement 4 pièces de 83.50m² Sud- 2ème étage - ascenseur - balcon 12.05m² - stationnements
La Richardais 35780
0
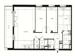
La Richardais - Appartement 4 pièces de 83.50m² Sud- 2ème étage - ascenseur - balcon 12.05m² - stationnements privatifs Proche de Saint-Malo et Dinard, idéalement située à la Richardais, au sein d'une résidence contemporaine, sécurisée et conforme aux dernières normes énergétiques, situé au 2ème étage avec ascenseur, cet appartement 4 pièces de 83.50m² exposé plein Sud , il se compose d'une entrée avec placard, dégagement, d'un séjour salon avec cuisine ouverte donnant sur un balcon de 12.05m², trois chambres, salle de bains avec wc, salle d'eau, wc indépendant, un espace rangement/cellier. Deux stationnements privatifs Que vous recherchiez une résidence principale ou secondaire, cet appartement dispose de nombreux atouts : situation proche du bord de la Rance, accès au port de plaisance, plages accessibles à quelques minutes, des services de proximité : commerces, marché, crèche, établissements scolaires, médiathèque, équipements sportifs et club de voile. Prix promoteur - frais de notaire réduits - Hautes performances énergétiques. Les informations sur les risques auxquels ce bien est exposé sont disponibles sur le site Géorisques : www.georisques.gouv.fr. Photos non contractuelles - Suggestions d'aménagements Copropriété de 17 lots - dont 17 lots habitation. (Pas de procédure en cours). Charges annuelles : 1195 euros.