Honoraires à la charge de l'acquéreur (Prix hors honoraires : 230000 euros).
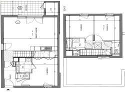
A deux pas de la Place Napoléon, cette agréable maison datant de 2016, d'environ 78 m2 sur deux niveaux offre confort, fonctionnalité et espace extérieur. Au rez-de-chaussée, vous découvrirez une cuisine aménagée et équipée, ouverte sur un séjour lumineux, une chambre avec dressing, une salle d'eau et WC séparés. À l'étage, l'espace nuit se compose de deux chambres, une salle de bains et un WC indépendant. À l'extérieur, profitez d'un jardinet et d'une terrasse privatifs, parfaits pour les moments de détente. La maison dispose également d'une place de parking et d'un emplacement boxé. Le bien est en copropriété horizontale. Disponible en juin 2026. Les informations sur les risques auxquels ce bien est exposé sont disponibles sur le site Géorisques : www.georisques.gouv.fr
79.39 m²
3 042 €
4
3
1
1
2
5.00 %
85 € / mois
2016
Oui
2
1
Oui (103 lots)
Consommations énergétiques
Logement économe
75
Logement énergivore (kWhEP/m2/an)
Émissions de gaz à effet de serre
Faible émission de GES
14
Forte émission de GES(kgeqCO2/m2/an)
Contact AUGEREAU
Contacter gratuitement à l'aide du formulaire ci-dessous.