Honoraires à la charge de l'acquéreur (Prix hors honoraires : 169500 euros).
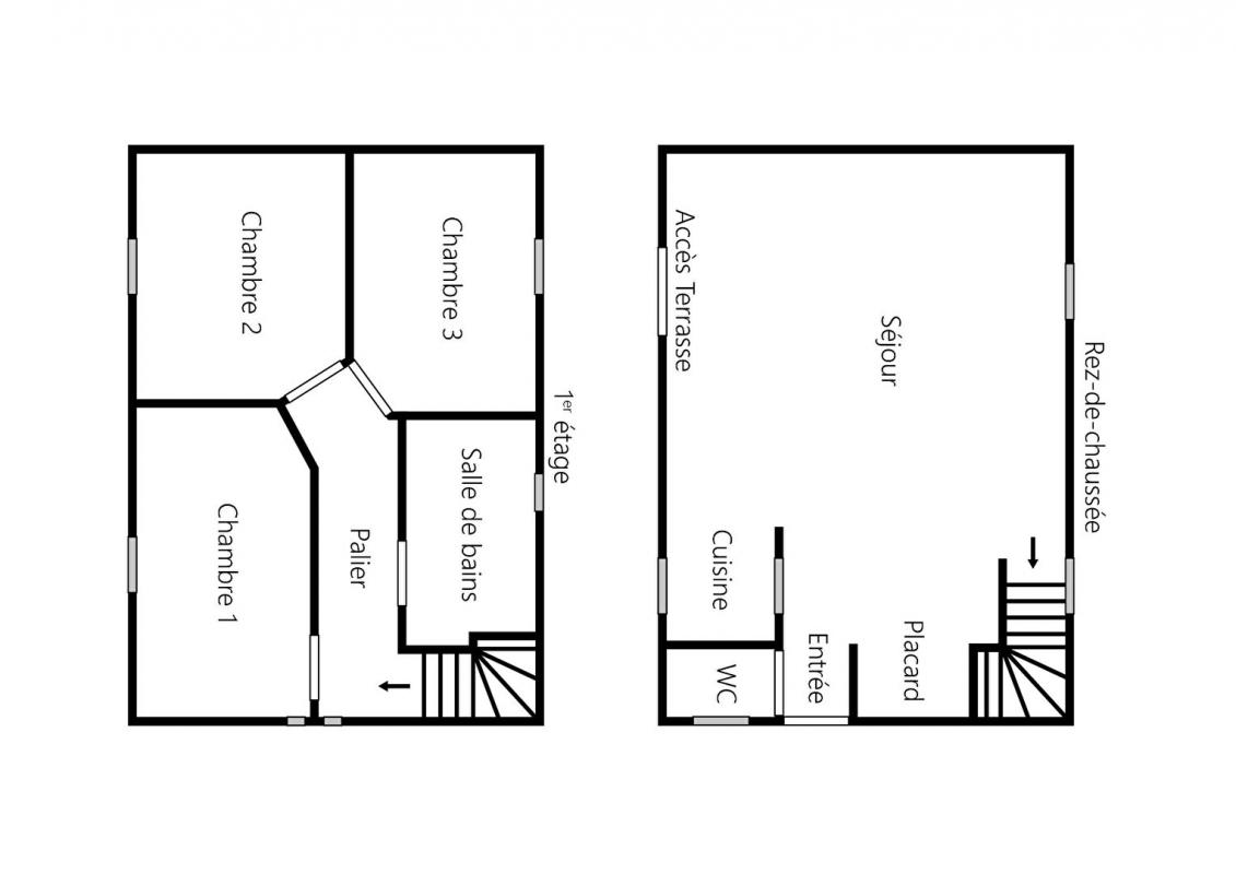
Nouveauté dans votre agence Bias Elbeuf: Sur secteur recherché et au calme, pavillon de plain pied surélevé, vous propose entrée abritée par véranda, cuisine aménagée et équipée, séjour/salon, salle de bains, 2 chambres, WC indépendant. Sous-sol total, jardin à l'arrière sans vis à vis.
Ce bien vous est proposé par un agent commercial Maria LE BECHEC (Entreprise Individuelle-RSAC 934 743 741).
Honoraires inclus de 5.9% à la charge de l'acquéreur. Prix hors honoraires 169 500 . Classe énergie E, Classe climat B Montant moyen estimé des dépenses annuelles d'énergie pour un usage standard, établi à partir des prix de l'énergie de l'année 2021 : entre 1284.00 et 1737.00 . Les informations sur les risques auxquels ce bien est exposé sont disponibles sur le site Géorisques : georisques.gouv.fr.
64 m²
2 805 €
779 m²
4
2
1
1 (séparé)
5.9 %
Consommations énergétiques
Logement économe
309
Logement énergivore (kWhEP/m2/an)
Émissions de gaz à effet de serre
Faible émission de GES
10
Forte émission de GES(kgeqCO2/m2/an)
Contact BIAS IMMOBILIER ELBEUF
Contacter gratuitement à l'aide du formulaire ci-dessous.