DECOUVREZ VOTRE MAISON DANS UN HAVRE DE PAIX À VILLENAVE D'ORNON.
Plongez dans l'univers de cette magnifique maison, nichée dans le charmant quartier de Villenave-d'Ornon. Au sein d'un cadre intimiste cette maison traversante en pleine propriété bénéficie de tous les avantages d'un quartier proches de commerces, écoles, lycée, équipements sportifs, divers services et transports en commun.
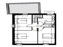
Cette maison en duplex est construite aux dernières normes du neuf avec toutes les garanties d'un confort de vie. L'accès direct sur le jardin et la terrasse promet des moments de détente inoubliables. L'exposition traversante inonde chaque pièce de lumière naturelle tout au long de la journée. Elle se compose au rez-de-chaussée d'une entrée avec placard, d'un séjour spacieux ou se mêlent élégance et convivialité . Une suite avec sa salle d'eau et un wc. A l'étage vous trouverez trois chambres une salle de bains et un second wc. . Ne manquez pas cette opportunité unique de vivre dans une maison où modernité et confort se conjuguent harmonieusement.
Un garage et une place de parking complètent ce bien
DECOUVREZ VOTRE MAISON DANS UN HAVRE DE PAIX À VILLENAVE D'ORNON.
Honoraires à la charge du vendeur. Dans une copropriété de 16 lots. Aucune procédure n'est en cours. DPE en cours. Les informations sur les risques auxquels ce bien est exposé sont disponibles sur le site Géorisques : georisques.gouv.fr.
Votre conseiller RH Patrimoine : Gérant associé - Philippe HERVE Carte T CPI 3301 2018 000 029 220
Maison contemporaine
107.78 m²
4 593 €
30 m²
300 m²
5
4
1
1
2 (séparés)
2025
1
1
1
Oui
Oui (16 lots)
Contact Philippe HERVE
Contacter gratuitement à l'aide du formulaire ci-dessous.