Lac d'Essonne - 3 Pièces - 65m² avec terrasse de 29m²
Corbeil-Essonnes 91100
0
Honoraires à la charge de l'acquéreur (Prix hors honoraires : 129000 euros).
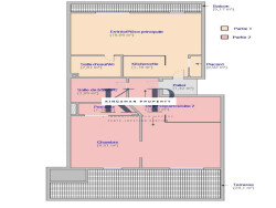
Appartement T3 avec Vue Lac Standing, Double Potentiel et Opportunité Investisseur Découvrez ce bien rare au fort potentiel, composé actuellement de deux appartements distincts pouvant être réunis, offrant une flexibilité idéale pour un projet d'investissement ou une résidence principale sur mesure. Situé au 1er étage d'un immeuble de standing de 3 étages, au sein d'une résidence sécurisée et en arrière-lot, ce bien développe une surface totale de 56 m². Il bénéficie d'un environnement calme et préservé, tout en restant proche de toutes les commodités. L'ensemble se compose de deux chambres, d'une salle de bains lumineuse, et d'un séjour de 20 m² baigné de lumière, offrant une vue imprenable sur le lac. Les espaces extérieurs sont un véritable atout : un balcon de 5 m² et une spacieuse terrasse de 29 m², parfaits pour profiter pleinement des beaux jours. La cuisine aménagée est fonctionnelle, tandis que l'état intérieur à rafraîchir laisse libre cours à vos envies d'aménagement, que ce soit pour une réunification des lots, une revente optimisée, ou un rendement locatif attractif. Une Cave complète ce bien et Possibilité d'une place de parking en Sus. Emplacement privilégié : École élémentaire, commerces et restaurants à 5 minutes à pied Maternelles et médecins généralistes à 10 minutes à pied Parcs et jardins à 5 minutes en voiture Hôpital à 10 minutes en voiture Les + du bien : Deux appartements séparés réunissables Idéal investisseur ou projet patrimonial Vue lac exceptionnelle Grande terrasse Résidence sécurisée, en arrière-lot Calme et luminosité Contactez-nous dès aujourd'hui pour organiser une visite et découvrir tout le potentiel de ce bien.
Honoraires inclus de 7.75% TTC à la charge de l'acquéreur. Prix hors honoraires 129 000 . Dans une copropriété de 70 lots. Aucune procédure n'est en cours. Classe énergie E, Classe climat B Montant estimé des dépenses annuelles d'énergie pour un usage standard : entre 1192.00 et 1615.00 sur les années 2021, 2022 et 2023 (abonnements compris). Les informations sur les risques auxquels ce bien est exposé sont disponibles sur le site Géorisques : georisques.gouv.fr.