Lattes - Maurin - Maison T4 de 95m2 au calme d'une impasse a
Lattes 34970
0
Honoraires à la charge du vendeur.
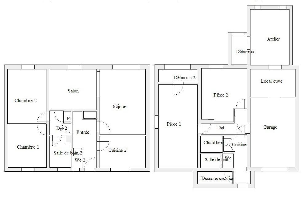
Découvrez cette charmante maison T4 de 95 m2, idéalement située dans le quartier prisé de Maurin à Lattes. Vous bénéficierez de la tranquillité d'une impasse sécurisée et reconnue pour son calme. Caractéristiques : - Superficie et Agencement : Maison T4 de 95 m2 habitables avec 3 chambres à l'étage, un WC au rez-de-chaussée et une salle d'eau avec WC à l'étage. - Espace de Vie : Un salon/séjour de 30 m2, convivial et facile à aménager, plus un bureau en rez-de-chaussée. - Cuisine séparé, fonctionnelle et une buanderie - Extérieur : Profitez d'un petit jardin intime à l'arrière et à l'entrée, parfait pour vos moments de détente en toute discrétion. - Stationnement : Un garage privatif pour votre véhicule ou du stockage.
Prestations et Confort : - État Impeccable :Aucun travaux à prévoir. La maison est en excellent état général. - Isolation et Économie d'Énergie : Équipée de double vitrage pour une isolation optimale. - Climatisation : Confort thermique assuré toute l'année grâce à la climatisation réversible et un système de gainable à l'étage, garantissant une diffusion homogène de l'air frais ou chaud.
Environnement et Localisation : - Sérénité : Nichée au calme d'une impasse, vous apprécierez la quiétude des lieux. - Proximité : Le village de Maurin offre toutes les commodités nécessaires à pied : supermarché, boulangerie, pharmacie, écoles, restaurants et transports. Un véritable esprit village aux portes de Montpellier et des plages !
Fonctionnelle, sécurisée et parfaitement entretenue, cette maison est prête à vous accueillir. Ne manquez pas cette opportunité rare sur Lattes !
Taxe foncière de 1697EUR. Le prix est de 398 000 EUR honoraires inclus à la charge du vendeur. Montant estimé des dépenses annuelles d'énergie pour un usage standard : entre 1230EUR et 1730EUR TTC / an. Date de référence des prix de l'énergie pour établir cette estimation : 22/10/2025. Les informations sur les risques auxquels ce bien est exposé sont disponibles sur le site Géorisques : www.georisques.gouv.fr ImmoMAPI
95 m²
4 189 €
30 m²
173 m²
4
3
1
2
1973
1
Oui
Oui
Consommations énergétiques
Logement économe
164
Logement énergivore (kWhEP/m2/an)
Émissions de gaz à effet de serre
Faible émission de GES
10
Forte émission de GES(kgeqCO2/m2/an)
Contact DUSSERT
Contacter gratuitement à l'aide du formulaire ci-dessous.