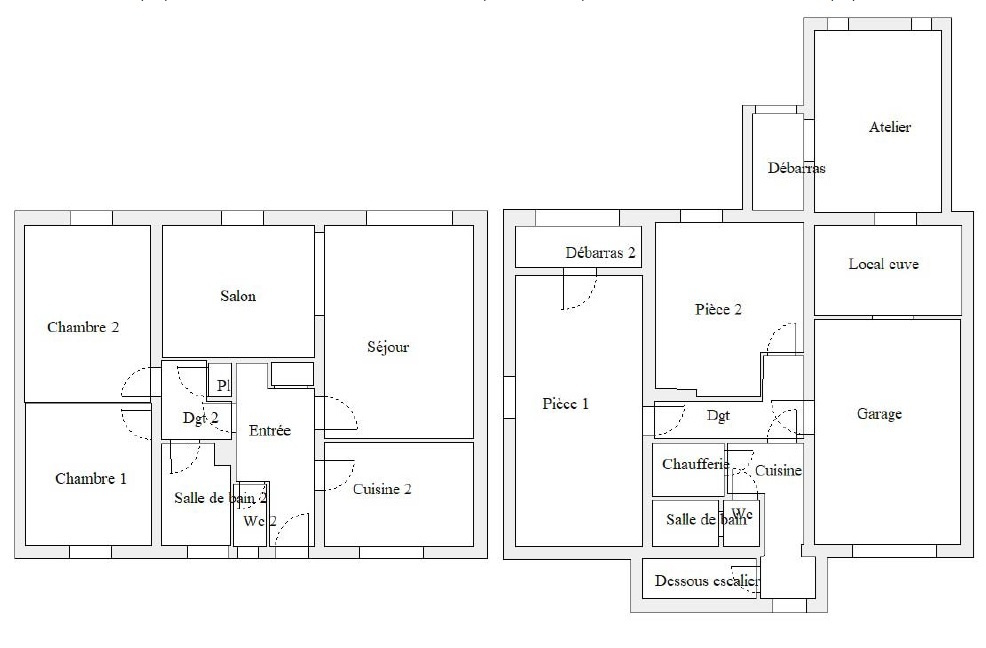
Idéalement située sur la commune de Lattes, cette maison de plain-pied bénéficie d'un emplacement stratégique à deux pas des commerces sur une parcelle de 506 m2. Cet ancien cabinet médical en parfait état dispose déjà de prestations modernes comme la climatisation, le double vitrage et une VMC, permettant une reprise d'activité professionnelle immédiate. Ce bien offre également une opportunité rare de transformation en maison d'habitation après une redistribution des volumes intérieurs selon vos besoins. La structure saine et les combles aménageables pour une pièce supplémentaire (environ 30m2) garantissent une base de rénovation exceptionnelle au centre du village. Que votre projet soit professionnel ou résidentiel, ce terrain spacieux et ce bâti évolutif sauront s'adapter à toutes vos envies architecturales. Taxe foncière de 1807EUR. Prix du bien : 480 000 EUR honoraires inclus à la charge du vendeur. Montant estimé des dépenses annuelles d'énergie pour un usage standard : entre 2430EUR et 3340EUR TTC / an. Date de référence des prix de l'énergie pour établir cette estimation : 09/02/2026. Nouveau DPE en cours de réalisation. Les informations sur les risques auxquels ce bien est exposé sont disponibles sur le site Géorisques : www.georisques.gouv.fr ImmoMAPI
97.1 m²
4 943 €
26 m²
506 m²
4
2
1
1
1977
Oui
Oui
Consommations énergétiques
Logement économe
245
Logement énergivore (kWhEP/m2/an)
Émissions de gaz à effet de serre
Faible émission de GES
9
Forte émission de GES(kgeqCO2/m2/an)
Contact DUSSERT
Contacter gratuitement à l'aide du formulaire ci-dessous.