Le Bignon - Plateau de bureaux neuf 96 m2 à vendre
Le Bignon 44140
0
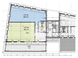
Au Sud de Nantes, à proximité de l'autoroute A83, dans un village d'entreprises situé au Bignon : Situé au 1er étage, plateau de bureaux de 96,40 m2, livré aménagé et non cloisonné avec les prestations suivantes (moquette, faux plafonds, luminaires Led, climatisation réversible) - Le programme répond à la réglementation thermique 2020. - Partie commune à partager (hall d'entrée, sanitaires et terrasse), accès PMR, local vélo et espace détente en extérieur. - 3 places de stationnement comprises dans le prix. Parkings précâblés pour l'installation de bornes électriques - Sanitaires privatifs - Toiture végétalisée - Prix de vente HT : 240 338 EUR + Honoraires charge acquéreur 5% HT du prix de vente HT + TVA 20% - Livraison prévisionnelle au 2ème semestre 2025 LOCAUX-BUREAUX-COMMERCES 02 55 07 86 35
96.4 m²
2 493 €
2024
Oui
Oui
Oui (10 lots)
Contact BERNOVILLE Sonia
Contacter gratuitement à l'aide du formulaire ci-dessous.