LE CANNET à vendre maison de 5 pièces de 116 m2 avec jardin
Le Cannet 06110
0
Honoraires à la charge du vendeur.
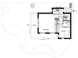
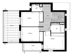
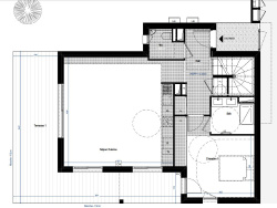
Maison à vendre LE CANNET, dans un véritable îlot de fraicheur à 10 min de la Croisette, dans un parc luxuriant au calme absolu, vous serez charmé par cette maison individuelle contemporaine de 5 pièces de 116 m2 bénéficiant d'un jardin aménagé de 192,50 m2, de 2 terrasses de 48,50 m2 et d'un balcon de 5 m2. Ce programme sera livré le 2ème trimestre 2025. Le bien sera composé d'un hall d'entrée avec placard, un wc séparés avec lave-mains, un séjour avec une cuisine américaine équipée donnant sur une terrasse de 17 m2 et le jardin, une chambre avec placard et une salle de bains. A l'étage vous trouverez un dégagement avec placard, wc lave-mains, 2 chambres avec placard donnant sur une terrasse de 31,50 m2, une chambre avec placard et un balcon de 5 m2, une salle de bains. Possibilité de 2 box fermés en sous-sol. La maison bénéficiera entre autre de la fibre pré-équipée, de volets roulants électriques avec une commande centralisée, de robinets extérieurs, domotique permettant la gestion du chauffage et des volets, de double vitrage, d'un vidéophone en couleur, contrôle d'accès à distance via téléphone ou tablette,... Frais de notaire offerts !! Prix promoteur. http://www.cannes-azur-immobilier.com CANNES AZUR IMMOBILIER secteurs CANNES, LE CANNET, MOUGINS, MOUANS-SARTOUX, VALBONNE, LA ROQUETTE SUR SIAGNE... 04.93.69.22.31 http://www.cannes-azur-immobilier.com CANNES AZUR IMMOBILIER secteurs CANNES, LE CANNET, MOUGINS, MOUANS-SARTOUX, LA ROQUETTE SUR SIAGNE... 04.93.69.22.31
116 m²
8 276 €
5 m²
36 m²
5
4
2
2
02/05/2025
2025
Sud
Ouest
1 (5 m²)
2
Oui
Contact Franck PAULMIER
Contacter gratuitement à l'aide du formulaire ci-dessous.