Découvrez ce magnifique duplex de 94,55 m² habitables, niché au coeur d'un immeuble de standing, offrant une vue imprenable sur un parc verdoyant. Ce bien, entièrement meublé, est prêt à accueillir ses nouveaux propriétaires dans un cadre de vie exceptionnel.
Un Espace de Vie Confortable et Élégant
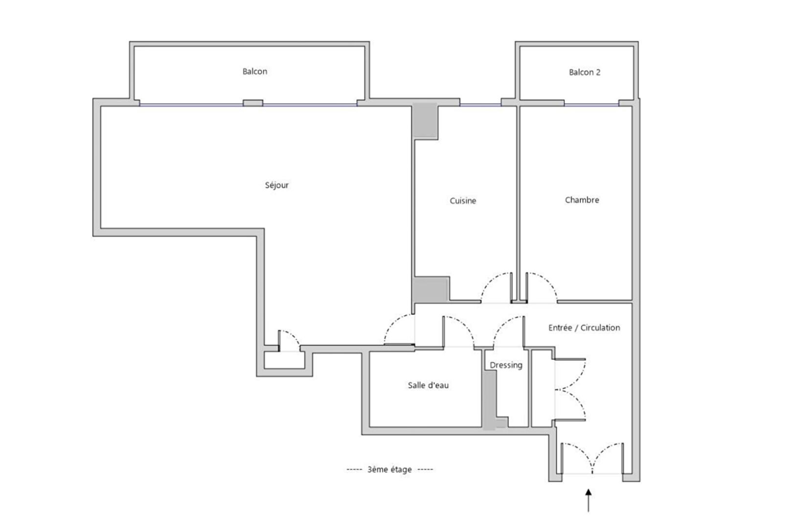
Situé au troisième et dernier étage, ce duplex de 107 m² au sol, rénové en 2023, allie charme de l'ancien et modernité. Les 48 m² du séjour baigné de lumière grâce à ses grandes ouvertures en bois, offrent une vue panoramique sur le parc. Les trois chambres, la salle de bains et les deux salles d'eau, toutes en excellent état, garantissent un confort optimal.
La cuisine américaine, aménagée et équipée, est idéale pour les amateurs de cuisine et les réunions familiales. Les deux WC indépendants, dont un à chaque étage, ajoutent une touche de praticité à ce bien d'exception.
Un Cadre de Vie Idéal
Exposé est-ouest, ce duplex bénéficie d'une luminosité exceptionnelle tout au long de la journée. Les parties communes, en bon état, ajoutent une touche de charme à ce bien. La cave de 10 m² et le grenier offrent des espaces de rangement supplémentaires, parfaits pour les affaires saisonnières ou les souvenirs précieux.
Le chauffage collectif assure une température agréable en toute saison, tandis que les portes à simple vitrage apportent une touche d'authenticité.
Proximité des Commodités
À seulement 10 minutes à pied, vous trouverez plusieurs commodités essentielles : une maternelle, une école élémentaire, un parc et jardin, des restaurants, des commerces d'alimentation générale, et des médecins généralistes. À 10 minutes en voiture, plusieurs crèches et collèges sont également accessibles. Pour vos déplacements quotidiens, un bus est disponible à 10 minutes à pied.
Ne manquez pas cette opportunité unique de vivre dans un cadre de vie exceptionnel, alliant confort, élégance et praticité. Contactez-nous dès aujourd'hui pour organiser une visite et tomber sous le charme de ce duplex de standing.
Honoraires à la charge du vendeur. Dans une copropriété de 73 lots. Quote-part moyenne du budget prévisionnel 3 814 /an. Aucune procédure n'est en cours. Classe énergie D, Classe climat C Montant moyen estimé des dépenses annuelles d'énergie pour un usage standard, établi à partir des prix de l'énergie de l'année 2021 : entre 1109.00 et 1501.00 . Les informations sur les risques auxquels ce bien est exposé sont disponibles sur le site Géorisques : georisques.gouv.fr.
Duplex
94.55 m²
5 711 €
48 m²
4
3
1
2
2 (séparés)
3 sur 3
15/05/2025
317.82 € / mois
1904
Collectif gaz
Américaine équipée
Est
Ouest
Oui
1
Oui
Oui (73 lots)
Consommations énergétiques
Logement économe
194
Logement énergivore (kWhEP/m2/an)
Émissions de gaz à effet de serre
Faible émission de GES
27
Forte émission de GES(kgeqCO2/m2/an)
Contact JLP-Immo
Contacter gratuitement à l'aide du formulaire ci-dessous.