Le logement qui vous correspond - T4 - Exterieur - Parking
Bordeaux 33800
0
Honoraires à la charge du vendeur.
HABITER, REVER ET SAVOURER VOTRE LIEU DE VIE
Bordeaux, dans un quartier ultra-dynamique, RH Patrimoine vous présente ce superbe T4 neuf, traversant et lumineux, situé au quatrième étage d'un immeuble moderne avec ascenseur, au pied de tous les transports (tramway et bus), à deux pas de la gare, des quais, du marché, des parcs et de l'ensemble des commerces.
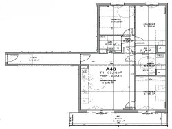
L'appartement offre trois chambres avec placard, plus de 33 m² de pièce de vie baignés de lumière, d'une salle d'eau, d'une salle de bain, de deux toilettes dont un indépendant pour répondre à l'ensemble de vos attentes.
Ce logement est prolongé par un extérieur de plus de 15 m², idéal pour profiter du soleil, déjeuner en plein air ou se détendre en toute intimité. Il est également complété par une place de parking sécurisée pour votre tranquillité.
Parfaitement prêt à vivre, sans aucun travaux à prévoir, il propose des espaces fluides et harmonieux où chaque moment devient agréable, que ce soit pour recevoir ou profiter pleinement de la vie citadine bordelaise, dans un quartier vivant et recherché qui allie dynamisme et authenticité.
Honoraires à la charge du vendeur. Dans une copropriété de 66 lots. Aucune procédure n'est en cours. DPE en cours. Les informations sur les risques auxquels ce bien est exposé sont disponibles sur le site Géorisques : georisques.gouv.fr.