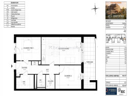
À VENDRE Appartement 3 pièces neuf en VEFA en rez de jardin avec terrasse et parking La Celle-Saint-Cloud (Coeur de Ville) Situé au coeur du tout nouveau quartier Coeur de Ville à La Celle-Saint-Cloud, au sein de la résidence élégante « Le Parc du Château », découvrez ce superbe appartement 3 pièces neuf de 64,50 m², idéal pour une résidence principale au calme. Un intérieur pensé pour votre confort : Cet appartement 3 pièces de 64,50 m² situé en rez-de-chaussée, offre un cadre de vie agréable et fonctionnel. Il se compose d'une belle pièce de vie lumineuse, ouverte sur une terrasse de 12,50 m² exposée plein Sud, idéale pour profiter des beaux jours. L'espace nuit comprend deux chambres, dont une conforme aux normes PMR, ainsi qu'une seconde chambre avec accès direct à la terrasse, apportant confort et praticité au quotidien. Un parking en sous-sol complète ce bien. Un cadre de vie privilégié : Implantée harmonieusement entre la rue Centrale et une venelle piétonne, la résidence bénéficie d'une architecture contemporaine aux lignes élégantes, avec des façades en gradins et des terrasses en cascade. Les accès se font par des halls soignés, entourés d'espaces paysagers mêlant jardins et cheminements doux. Un quartier vivant et verdoyant : Pensé comme une nouvelle centralité, le quartier Coeur de Ville offre un environnement convivial et dynamique : Médiathèque récente avec animations et événements Commerces de proximité, restaurants, crèche et gare Proximité immédiate de l'Hôtel de Ville et du théâtre À seulement quelques minutes à pied, profitez également du parc de la Grande Terre, de nombreux jardins et d'une coulée verte, pour un équilibre parfait entre vie urbaine et nature. Les + du bien : Appartement neuf (VEFA)- Une promotion OGIC Terrasse spacieuse Parking en sous-sol Quartier central et recherché Environnement verdoyant et équipements à proximité Une opportunité rare de vivre dans un cadre moderne, animé et apaisant à la fois. Contactez-nous dès maintenant pour plus d'informations !
Honoraires à la charge du vendeur. Dans une copropriété de 255 lots. Quote-part moyenne du budget prévisionnel 3 000 /an. Aucune procédure n'est en cours. DPE en cours. Les informations sur les risques auxquels ce bien est exposé sont disponibles sur le site Géorisques : georisques.gouv.fr.
64.47 m²
6 980 €
3
2
1
1
1 sur 3
Sud
Oui
1
1
Oui
Oui (255 lots)
Contact ROMBAUT IMMOBILIER
Contacter gratuitement à l'aide du formulaire ci-dessous.