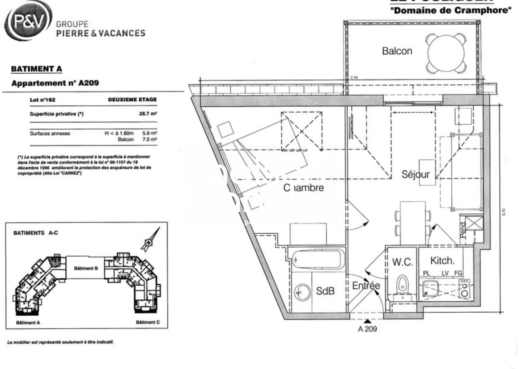
Votre agence BRAS immobilier vous propose un studio face au port, du Pouliguen et offrant une vue dégagée sur les bateaux. Situé au deuxième étage d'une petite copropriété ce studio comprend : un salon, un coin cuisine et une salle d'eau avec wc.
Vous disposerez de toutes les commodités, le marché et les animations à proximité de l'appartement. Sa situation entre la Gare et la Plage vous permet de vous déplacer à pied tout au long de votre séjour.
Les informations sur les risques auxquels ce bien est exposé sont disponibles sur le site Géorisques: www.georisques.gouv.fr (7.50 % honoraires TTC à la charge de l'acquéreur.)
Copropriété de 4 lots - dont 3 lots habitation. (Pas de procédure en cours).
Charges annuelles : 300 euros.
24 m²
6 271 €
21 m²
1
1
1
2 sur 3
1900
Coin cuisine
Oui
Consommations énergétiques
Logement économe
312
Logement énergivore (kWhEP/m2/an)
Émissions de gaz à effet de serre
Faible émission de GES
10
Forte émission de GES(kgeqCO2/m2/an)
Contact BRAS IMMOBILIER
Contacter gratuitement à l'aide du formulaire ci-dessous.