Le Raincy (93340) - Centre-ville - Appartement 6 pièces avec toit terrasse
Le Raincy 93340
0
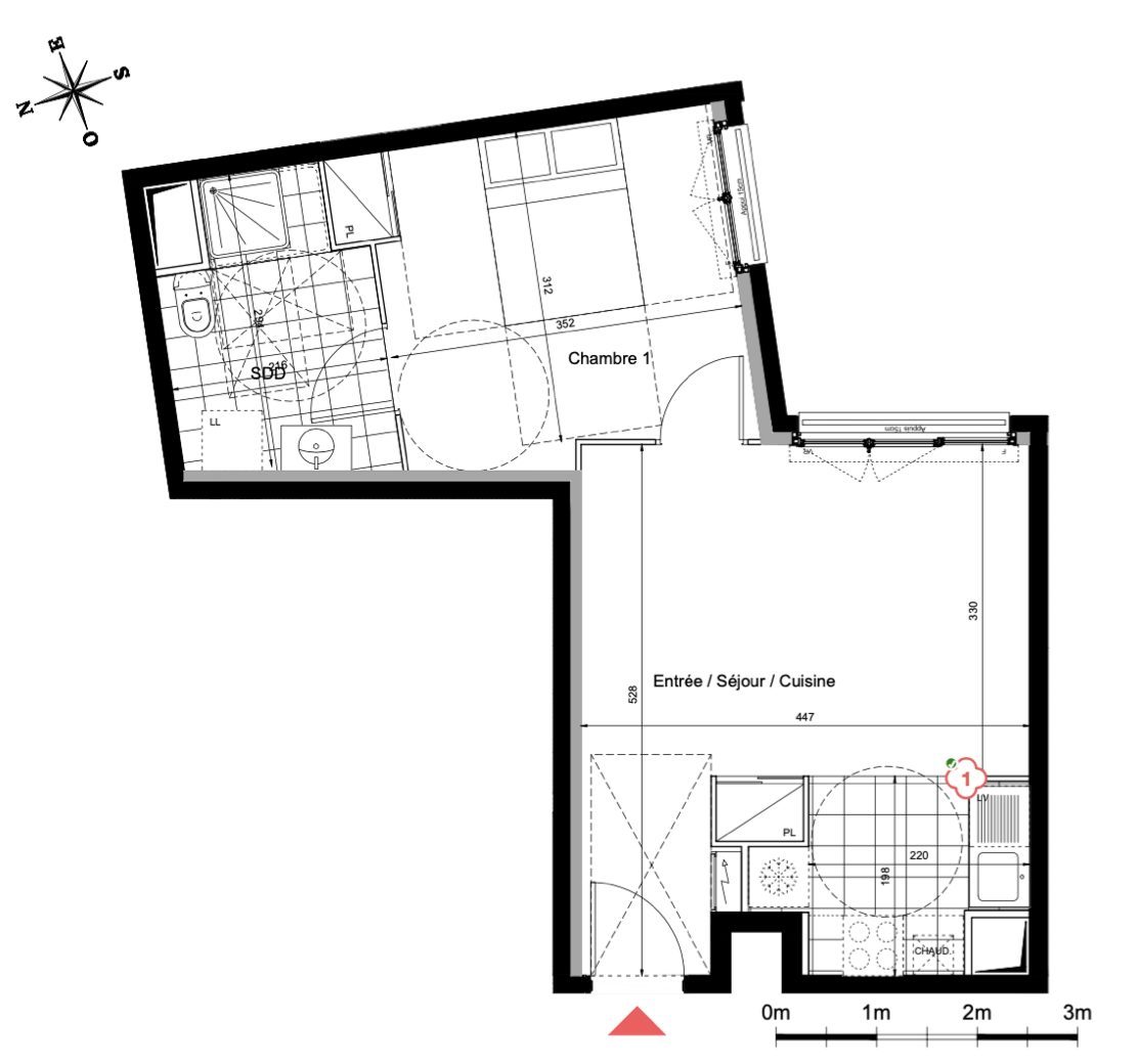
Le Raincy (93340) - Centre-ville - Appartement 6 pièces (4 chambres) - 181.43 m2 Carrez - Toit terrasse de 40 m2 - Trois terrasses (43 m2 au total) - BOX fermé et une deuxième place de stationnement en rez-de-chaussée - Cave - Vue dégagée Au dernier étage par ascenseur et seul sur le palier d'une jolie copropriété de 1990 parfaitement tenue, cet appartement de 6 pièces est lumineux, traversant, avec des vues dégagées de toutes les pièces. L'entrée dessert un spacieux double séjour avec une grande cheminée et une terrasse de 30m2, une cuisine indépendante, un bureau et une buanderie. La partie nuit avec ses 4 chambres (dont une suite parentale avec sa salle de bains) ouvrent toutes sur les deux autres terrasses, une seconde salle d'eau et 2 toilettes indépendants. De nombreux rangements sur-mesure sont intégrés à l'appartement. Une terrasse rooftop privative de 38m2 avec vue panoramique est accessible depuis le palier de l'appartement. Ce bien est proposé avec un box fermé, une seconde place de stationnement au rez-de-chaussée de l'immeuble, et une grande cave. Situé au coeur du Raincy, le bien est à proximité de tous les commerces et activités de la commune, et à moins de 10 minutes à pied des gares "Les Pavillons-sous-Bois" et Allée de la Tour Rendez-Vous" ainsi que de la ligne de tramway T4 (Les Pavillons-sous-Bois), RER E "Raincy Villemomble". Bien soumis au statut de la copropriété : 7/ 56 lots Quote-part annuelle du budget prévisionnel : 4625 €/ an (soit 386 €/mois) Pas de procédures en cours. DPE classé D Pour organiser une visite, contactez Adèle au 06.09.50.77.11, RSAC 918619487
196 m²
4 311 €
6
4
1
2
5
1990
Consommations énergétiques
Logement économe
192
Logement énergivore (kWhEP/m2/an)
Émissions de gaz à effet de serre
Faible émission de GES
37
Forte émission de GES(kgeqCO2/m2/an)
Contact Adèle ASSI
Contacter gratuitement à l'aide du formulaire ci-dessous.