LE VESINET - Quartier des Charmettes - Lumineux appartement 3 pi
Le Vésinet 78110
0
Honoraires à la charge de l'acquéreur (Prix hors honoraires : 310000 euros).
A VENDRE - Quartier des Charmettes - appartement 3 pièces de 64 m².
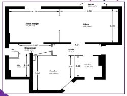
Situé au dernier étage d'un immeuble de 3 étages des années 1930, à seulement 12 minutes à pied du RER, venez découvrir ce charmant appartement traversant de 64 m², lumineux et parfaitement agencé.
Il se compose d'une belle entrée avec rangements, d'un lumineux séjour traversant ouvrant sur un petit balcon, d'une cuisine entièrement indépendante aménagée et équipée, ainsi que d'un dégagement avec penderie.
La partie nuit offre une chambre avec rangements (possibilité d'en créer une deuxième), des WC séparés et une salle d'eau avec fenêtre, entièrement refaite à neuf en 2022.
Actuellement agencé en salon et salle à manger, l'appartement offre une grande flexibilité. Il est très aisé de transformer la salle à manger en une spacieuse chambre de 15,5 m², vous laissant tout de même profiter d'un lumineux séjour de 18 m².
Une cave en sous-sol complète ce bien.
Possibilité d'acquérir un garage privatif au sein de la copropriété en supplément.
L'appartement est en bon état général, et la note du DPE a été améliorée grâce à l'isolation des combles et à l'installation d'une VMC, offrant un meilleur confort thermique et une optimisation des performances énergétiques.
Proximité immédiate des commerces, crèches, écoles, du parc des Ibis, et du RER accessible à pied
Honoraires inclus de 4.19% TTC à la charge de l'acquéreur. Prix hors honoraires 310 000 . Dans une copropriété de 20 lots. Aucune procédure n'est en cours. Classe énergie E, Classe climat C Montant estimé des dépenses annuelles d'énergie pour un usage standard : entre 2860.00 et 3890.00 sur les années 2021, 2022 et 2023 (abonnements compris). Les informations sur les risques auxquels ce bien est exposé sont disponibles sur le site Géorisques : georisques.gouv.fr.
Votre conseiller MYAGENCE : Gérant - Yves MANGOLD Carte T CPI67012023000000029 RCP MMA IARD - 148561510
63.77 m²
5 065 €
1 m²
3
2
1
1 (séparé)
3 sur 3
4.19 %
1929
1 (1 m²)
Oui
1
Oui (20 lots)
Consommations énergétiques
Logement économe
329
Logement énergivore (kWhEP/m2/an)
Émissions de gaz à effet de serre
Faible émission de GES
19
Forte émission de GES(kgeqCO2/m2/an)
Contact
Contacter gratuitement à l'aide du formulaire ci-dessous.