Prochainement au Houlme, découvrez votre nouvelle résidence nommée Les Corderies.
IMMÖÖ vous propose 10 maisons de ville et 4 appartements !
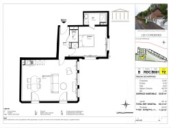
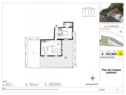
Cette future résidence rénovée est composée d'appartements du studio au 2 pièces dotés d'un grand jardin pour ceux en rez-de-chaussée et de maisons 2 ou 4 pièces également avec jardin privatif et pour certaines maisons, un balcon. Les appartements/maisons de plus d'une pièce disposent d'une place de stationnement en extérieur. Une maison conviviale où bonheur et épanouissement seront donc les maîtres mots.
Cette résidence saura vous séduire avec ses prestations et finitions de qualité : Résidence privée Volets roulants motorisés Cuisine ouverte Jardin privatif pour la plupart des logements Stationnement privé
Honoraires à la charge du vendeur. Non soumis au DPE. Les informations sur les risques auxquels ce bien est exposé sont disponibles sur le site Géorisques : georisques.gouv.fr.
52.92 m²
3 156 €
2
1
2024
1
Contact Agence IMMÖÖ
Contacter gratuitement à l'aide du formulaire ci-dessous.