Les Sables d'Olonne - Cellule commerciale 300 m² à louer
Les Sables-d'Olonne 85180
0
Honoraires à la charge de l'acquéreur (Prix hors honoraires : 0 euros).
Les charges de location sont prévisionnelles mensuelles avec régularisation annuelle.
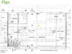
Commune des Sables d'Olonne secteur Chateau d'Olonne Emplacement N°1 sur un axe passant proche de grandes enseignes de distribution et de services A louer cellule commerciale de 300 m2 environ Caractéristiques : ERP aux normes d'accès PMR Résistance dalle 600 kg/M2 Linéaire vitrine de 30 métres Climatisation, parking Accès véhicules légers et poids lourds Conditions de location : Bail commercial 3/6/9 Loyer annuel : HT/HC Charges annuelles : HT(provision) Dépôt de garantie 3 mois de loyer A la Charge du preneur : Taxe foncière, frais de rédaction de bail et d'état des lieux Honoraires de commercialisation 25 % HT du loyer annuel HT/HC Pour tout complément d'information merci de contacter l'agence
Provision sur charges 1 500 HT/mois, régularisation annuelle. Dépôt de garantie 8 750 . Classe énergie D, Classe climat B. Les informations sur les risques auxquels ce bien est exposé sont disponibles sur le site Géorisques : georisques.gouv.fr. . LOCAUX-BUREAUX-COMMERCES 02 55 07 86 35
300 m²
1500.00 € / mois
2011
6
Consommations énergétiques
Logement économe
228
Logement énergivore (kWhEP/m2/an)
Émissions de gaz à effet de serre
Faible émission de GES
7
Forte émission de GES(kgeqCO2/m2/an)
Contact Sonia BERNOVILLE
Contacter gratuitement à l'aide du formulaire ci-dessous.