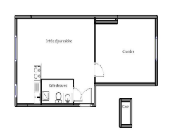
L'agence Welcome Home et Nicolas DELIVET vous présente en exclusivité : Levallois-Perret Localisation exceptionnelle à 2 minutes du métro Anatole France (ligne 3). Nous vous proposons cet appartement de 2 pièces de 32,45 m2 de surface Loi Carrez situé au 4eme étage d'un immeuble ancien bien entretenu et sécurisé. Il se compose comme suit :
Une entrée, Un séjour au calme sur cour, Une cuisine ouverte sur le séjour, Une belle chambre, Une salle d'eau avec wc,
À cet ensemble s'ajoutent :
Une cave sous immeuble.
Cet appartement séduit par sa distribution intelligente et son authenticité. Le bien est situé au pied de tous les commerces (boulangeries, médecins, pharmacies, restaurants, bars, supermarchés, etc...). Métro Anatole France à moins de 2 minutes, Bus à proximité immédiate. Informations copropriété : Nombre de Lots : 34 Nombre d'appartements : 29 Charges annuelles : 1081,96 EUR Taxes Foncières : EUR DPE réalisé le 15 février 2026. Consommation E : 273 KWh/m2. An. Émissions B : 10 kg CO2/m2. An. Estimations coûts annuels d'énergie. Entre 870 EUR et 1220 EUR. Prix moyens des énergies indexés su les années 2021, 2022 et 2023 (abonnement compris). Prix du bien : 307.500EUR Honoraires inclus à la charge du vendeur. Les informations sur les risques auxquels ce bien est exposé sont disponibles sur le site Géorisques : http://www.georisques.gouv.fr Nous sommes joignable 7j/7 au 06 47 82 68 09.
32.45 m²
9 476 €
15 m²
2
1
1
1
4 sur 5
90.16 € / mois
1930
Sud
Est
Oui
Oui
Oui
Oui (34 lots)
Consommations énergétiques
Logement économe
273
Logement énergivore (kWhEP/m2/an)
Émissions de gaz à effet de serre
Faible émission de GES
10
Forte émission de GES(kgeqCO2/m2/an)
Contact Iad France - Nicolas DELIVET
Contacter gratuitement à l'aide du formulaire ci-dessous.