Honoraires à la charge de l'acquéreur (Prix hors honoraires : 135000 euros).
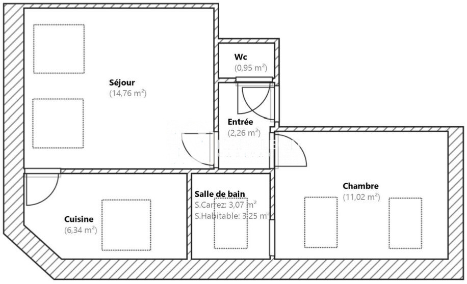
Dans une petite copropriété de 19 lots, appartement T2 de 50 m², situé dans un immeuble bien entretenu. Il se compose d'une pièce de vie lumineuse avec parquet, L'espace permet d'aménager confortablement un salon et un coin repas. Une cuisine séparée aménagée, la partie nuit se compose d'une chambre de bonne taille, au calme, offrant de beaux volumes et un parquet chaleureux. Une salle de bains avec douche. Appartement lumineux, alliant charme de l'ancien et rénovation récente. Emplacement proche des commerces et des transports. Idéal résidence principale ou investissement locatif. Provisions pour charges courantes annuelles 1168.
50 m²
2 840 €
20 m²
2
1
1
1 (séparé)
1 sur 4
5.19 %
97.00 € / mois
1950
Oui (19 lots)
Consommations énergétiques
Logement économe
312
Logement énergivore (kWhEP/m2/an)
Émissions de gaz à effet de serre
Faible émission de GES
64
Forte émission de GES(kgeqCO2/m2/an)
Contact LAKEL
Contacter gratuitement à l'aide du formulaire ci-dessous.