LIMITE ABYMES ET MORNE A L'EAU PROGRAMME NEUF DE 44 LOGEMEN
Les Abymes 97139
0
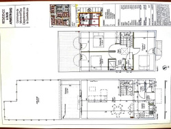
CE NOUVEAU PROGRAMME MODERNE SITUE LIMITE ABYMES ET MORNE A L EAU PROCHE DU NOUVEL HOPITAL EN CONSTRUCTION DES ABYMES CONSISTE EN LA REALISATION D'UNE RESIDENCE SECURISEE DE 44 VILLAS MITOYENNES REGROUPEES EN ILOTS SUR UNE PARCELLE DE PRES DE 8000M2 SITUEE A LA FOIS EN ZONE RURALE PEU DENSE MAIS A POXIMITE QUASI IMMEDIATE DE L'AGGLOMERATION POINTOISE. CHAQUE ILOT DISPOSE D'UN ESPACE EXTERIEUR COMMUN DESSERVANT LES ENTREES INDIVIDUELLES DE CHAQUE HABITATION. LES JARDINS PRIVATIFS SONT IMPLANTES A L ARRIERE DES LOGEMENTS POUR PERMETTRE A CHAQUE RESIDENT DE POUVOIR PLEINEMENT EN PROFITER. SOYEZ LES PREMIERS A RESERVER VOTRE NOUVEAU LOGEMENT EN APPELANT CAPITAL IMMOBILIER ! LIVRAISON 2025