Livry-Gargan - Appartement F3 Dernier Étage + Grande Terrass
Livry-Gargan 93190
0
Honoraires à la charge du vendeur.
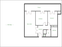
SIA Immobilier vous propose en exclusivité : Un bel appartement F3 de 67m2 avec une grande terrasse de 28m2 (vue dégagée, sans vis-à-vis). Situé au dernier étage d'une résidence de standing situé au 23 Boulevard de la République. Agencement : Entrée avec dressing, grand salon avec cuisine ouverte équipée (accès terrasse), 2 chambres avec dressing (accès terrasse), salle d'eau moderne (douche à l'italienne), WC séparé. Atouts : Parquet point de Hongrie, climatisation, volets électriques. Cave et parking inclus. Possibilité d'un 2ème parking en sus. Points forts : Résidence sécurisée et bien entretenue (aucun travaux à prévoir). Emplacement idéal : transports en commun à proximité. Opportunité rare : Libre de toute occupation, aucun travaux à prévoir (appartement et copropriété). Aucune procédure en cours. Contactez-nous vite pour une visite ! Informations complémentaires : Honoraires : Charge Vendeur - Net Vendeur : 310 000EUR - Copropriété de 38 lots à usage d'habitation, de commerce et de bureaux- Charges Générales de copropriété : 364 EUR / trimestrielles - Taxe foncière : 1913 EUR - Millième de copropriété (339/10 000) - Classement du logement en matière de performance énergétique (DPE) : C 52 Kwh/m2/an d'énergie finale- Montant estimé des dépenses annuelles d'énergie pour un usage standard entre 710 et 1 1010 EUR, indexés sur les années 2021 à 2023 - Les informations sur les risques auxquels ce bien est exposé sont disponibles sur le site Géorisques : www.georisques.gouv.fr
67.31 m²
4 680 €
31 m²
3
2
1
1
5 sur 5
2011
Oui
Oui
1
Oui
1
Oui
Oui
Oui
Oui (38 lots)
Consommations énergétiques
Logement économe
120
Logement énergivore (kWhEP/m2/an)
Émissions de gaz à effet de serre
Faible émission de GES
3
Forte émission de GES(kgeqCO2/m2/an)
Contact AMMAR Jérome
Contacter gratuitement à l'aide du formulaire ci-dessous.