Honoraires à la charge de l'acquéreur (Prix hors honoraires : 0 euros).
Les charges de location sont prévisionnelles mensuelles avec régularisation annuelle.
LA ROCHE-SUR-YON NORD
OPPORTUNITÉ EXCEPTIONNELLE !!
A LOUER - LOCAL COMMERCIAL
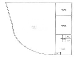
Nouvelle opportunité locative exceptionnelle, emplacement idéal dans la zone commerciale dynamique rue Graham Bell à la Roche-sur-Yon Nord. Local commercial d'environ 460 m² composé de : Une réserve avec porte sectionnelle d'environ 90 m² Une surface de vente d'environ 350 m² avec deux portes de services une grande entrée client vitrée Bureaux et des sanitaires d'environ 20 m² Affichage publicitaire sur panneau avec une visibilité directe sur l'axe Nantes/La Roche-sur-Yon. Le tout avec 20 places de parking communes.
N'hésitez pas à nous contacter pour plus d'éléments. DISPONIBLE DÉBUT D'ANNÉE 2025 !
Loyer mensuel : 5 000.00 HT Dépôt de garantie : 10 000.00 Honoraires d'agence à charge du preneur : 15 600.00 HT soit 18 720.00 TTC
Pour tous renseignements complémentaires, contactez DURET L'IMMOBILIER D'ENTREPRISE ou Raphaël JAULIN, votre spécialiste en immobilier d'entreprise. Accueil téléphonique du Lundi au Vendredi de 8h30 à 17h45.
Les informations sur les risques auxquels ce bien est exposé sont disponibles sur le site Géorisques : www.georisques.gouv.fr
RAJ
Honoraires de 15 600 à la charge du locataire. Dépôt de garantie 10 000 . DPE en cours. Les informations sur les risques auxquels ce bien est exposé sont disponibles sur le site Géorisques : georisques.gouv.fr.
460 m²
15600 %
Contact Agence Duret Immobilier d'Entreprise
Contacter gratuitement à l'aide du formulaire ci-dessous.