Honoraires à la charge de l'acquéreur (Prix hors honoraires : 0 euros).
Les charges de location sont prévisionnelles mensuelles avec régularisation annuelle.
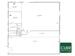
Local d'activité à louer situé au sein de la zone artisanale du Meyrol à MONTÉLIMAR. Le bâtiment comprend une surface commerciale de 151 m², desservant deux bureaux, un espace sanitaire ainsi qu'un coin cuisine. Il dispose également d'un entrepôt / atelier attenant d'environ 278 m² équipé d'une porte sectionnelle et d'un pont roulant. Une mezzanine de 255 m² complète l'ensemble, ainsi qu'un espace vestiaire et sanitaires. Stationnements privatifs pour la clientèle et le personnel. Le tout est implanté sur une parcelle d'environ 2 055 m². Taxe foncière à la charge du preneur. Local disponible à compter de février.
Dépôt de garantie 8 333 . DPE vierge. Les informations sur les risques auxquels ce bien est exposé sont disponibles sur le site Géorisques : georisques.gouv.fr.