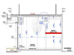
<p style="text-align:center;"><strong>Local Commercial à vendre - Coeur de Ville - 1 060 000 € HAI</strong></p><p style="text-align:justify;">J'ai le plaisir de vous présenter ce local commercial d'une surface de 255 m2 (205m2 de plain pied + 50m2 de mezzanine) situé en rez-de-chaussée du nouveau coeur de ville de la commune de St Laurent du Var, disposant d'une belle vitrine, d'une belle hauteur sous plafond (plus de 5m) ainsi qu'une gaine d'extraction.</p><p style="text-align:justify;">Certains aménagements intérieurs sont envisageables en début de construction, en respectant les contraintes techniques afin d'adapter la configuration de votre local à votre activité.</p><p style="text-align:justify;">Votre futur commerce se situera au sein d'une résidence qui disposera de toitures végétalisées et de façades animées par des jardinières plantées. Une place centrale piétonne avec fontaine se situera devant les commerces pour le confort de vos clients.</p><p style="text-align:justify;">Ce nouveau programme est implanté en plein centre-ville de la commune de St Laurent du Var qui compte plus de 30 000 habitants. Vous y découvrirez une ville dynamique et familiale dans laquelle se déroulent de nombreux évènements tout au long de l'année.</p><p style="text-align:justify;">De plus, vous bénéficierai d'un emplacement idéal pour votre commerce de part la proximité la future ligne 4 du tramway (4 min), l'accès à l'autoroute A8 (5 min) et les transports en communs.</p><p style="text-align:justify;">Vous recherchez à développer votre activité au sein du centre-ville de la commune de Saint-Laurent-du-Var ? Ce local commercial est adapté et vous vous retrouverez au coeur d'un projet unique sur cette commune !</p><p style="text-align:justify;"> Votre clientèle pourra, également, accéder au parking en sous-sol afin de réaliser des achats auprès des commerçants.</p><p style="text-align:justify;"><strong>Enfin, vous bénéficierez des atouts d'un logement neuf :</strong></p><p style="text-align:justify;"><strong>- Les garanties d'un logement neuf</strong></p><p style="text-align:justify;"><strong>- Le confort d'équipements neufs</strong></p><p style="text-align:justify;"><strong>- Les frais de notaires réduits</strong></p><p style="text-align:justify;">Vous souhaitez obtenir des renseignements complémentaires, contactez-moi au 06.09.44.95.02 ou par mail : celine.delgiudice@remax.fr</p><p style="text-align:justify;">Céline DEL GIUDICE</p><p style="text-align:justify;">Votre Conseillère en Immobilier RE/MAX SUNSET</p>
Honoraires à la charge du vendeur.
Les informations sur les risques auxquels ce bien est exposé sont disponibles sur le site Géorisques : www.georisques.gouv.fr .
220 m²
4 818 €
2026
Oui
Contact DEL GIUDICE Céline
Contacter gratuitement à l'aide du formulaire ci-dessous.