Honoraires à la charge de l'acquéreur (Prix hors honoraires : 900000 euros).
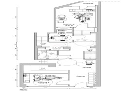
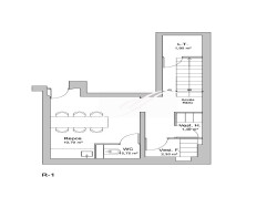
Local commercial Avenue du Maine Paris 14ème
À proximité immédiate de la Mairie du 14ème, nous vous proposons à la vente les murs d'un local commercial de 125 m² (dont 122 m² Carrez) répartis sur trois niveaux. Situé sur l'avenue du Maine, ce local bénéficie d'un environnement dynamique et recherché. Actuellement occupé par un cabinet dentaire, il dispose d'une configuration optimisée et sécurisée, offrant de nombreuses possibilités d'aménagement. Idéal pour une activité médicale, paramédicale, de bureaux ou toute autre profession libérale.
Prix de vente : 964 000 FAI
Pour toute information complémentaire ou pour organiser une visite, contactez-moi au 06 70 67 56 57.
Honoraires inclus de 7.11% HT à la charge de l'acquéreur. Prix hors honoraires 900 000 . DPE en cours. Les informations sur les risques auxquels ce bien est exposé sont disponibles sur le site Géorisques : georisques.gouv.fr.