Chez Novarea, dénicher des lieux uniques pour des projets ambitieux, c'est notre spécialité.
Aujourd'hui, nous vous ouvrons les portes d'un monument palois.
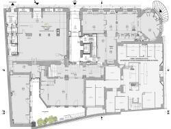
Découvrez cette opportunité rare au c?ur de Pau : un bâtiment emblématique en pleine renaissance. Situé au rez-de-chaussée de l'ancien Hôtel Continental, actuellement en cours de réhabilitation en appartements de standing, ce local développe une surface de 627 m² (565 m² utiles / 624 m² SDP).
Son atout majeur ?
Un emplacement premium en plein centre-ville, avec un accès par l'une des entrées les plus remarquables de Pau, sublimée par une marquise élégamment intégrée dans une rotonde. À cela s'ajoute une cour intérieure privative, offrant un cadre unique et prestigieux pour accueillir votre activité.
Ce local peut être divisé en deux cellules (environ 200 m² et 400 m²), chacune avec son propre accès sur rue, offrant ainsi une grande flexibilité pour différents projets.
Cour intérieure privative, pour un cadre unique en centre-ville.
Entrée remarquable, sublimée par une marquise intégrée dans une rotonde, l'une des plus belles de Pau.
Emplacement premium, au c?ur de la ville, dans un immeuble chargé d'histoire.
Ce que l'on aime chez Novarea : c'est l'opportunité de s'implanter dans un lieu iconique. Que ce soit pour un commerce de caractère, un concept store haut de gamme, ou un nouveau concept de restauration dansant, ce bien offre un potentiel exceptionnel.
L'emplacement est idéal, en plein c?ur de Pau. Ne laissez pas passer cette opportunité unique !
Pour en savoir plus ou planifier une visite, contactez dès maintenant Novarea.
627 m²
3 126 €
1850
Contact Novarea Pau
Contacter gratuitement à l'aide du formulaire ci-dessous.