Les charges de location sont prévisionnelles mensuelles avec régularisation annuelle.
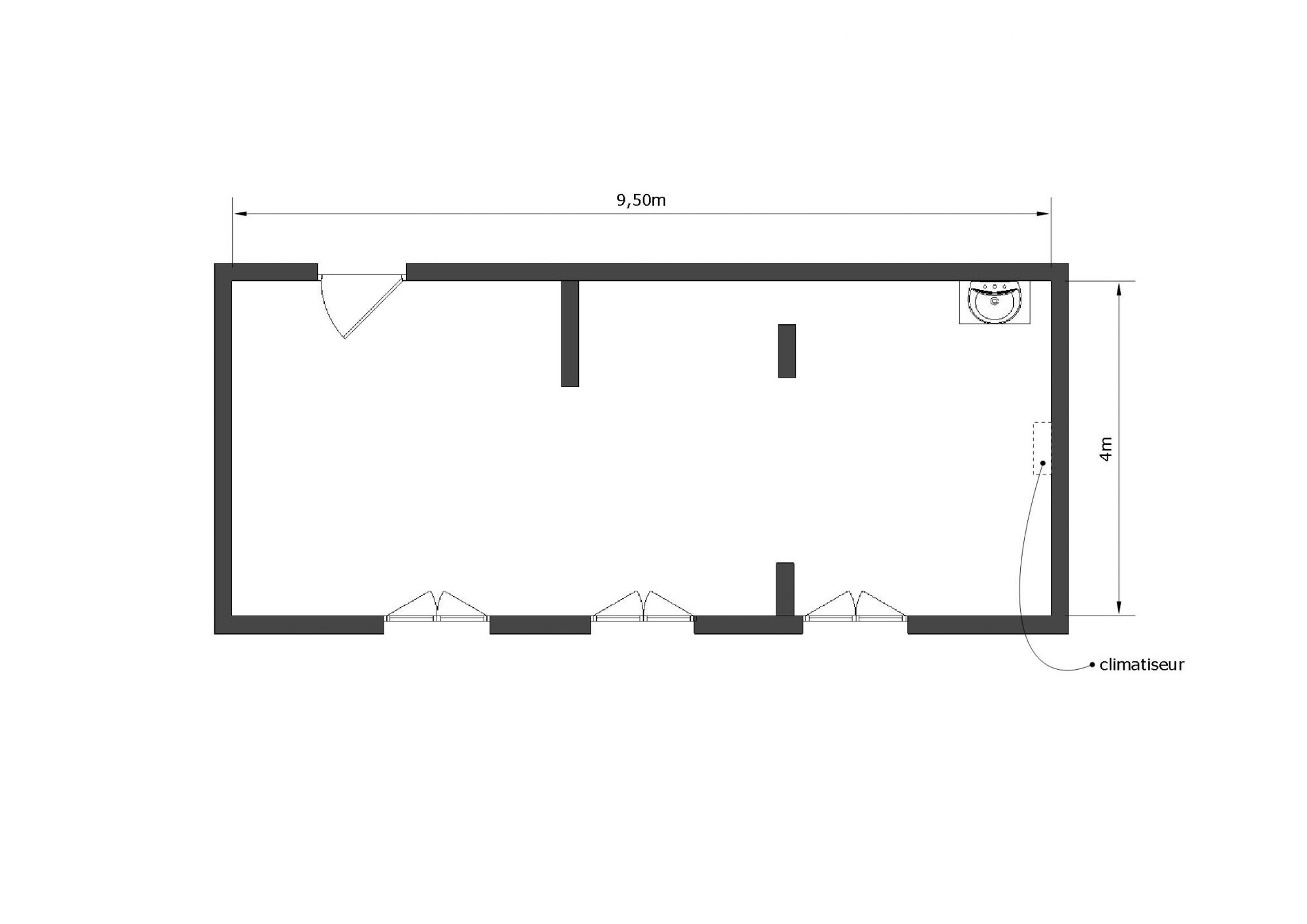
A LOUER SUR LA COMMUNE DE PRIGONRIEUX 10MIN OUEST BERGERAC Dans une galerie commerciale accueillante avec parking gratuit. Local à usage commercial d'environ 60m2 avec un espace cuisine et wc. Loyer : 550 HT + TF
Honoraires de 770 à la charge du locataire. Dépôt de garantie 1 100 . DPE vierge. Les informations sur les risques auxquels ce bien est exposé sont disponibles sur le site Géorisques : georisques.gouv.fr.
60 m²
1
770 %
Contact ILEA IMMOBILIER
Contacter gratuitement à l'aide du formulaire ci-dessous.