Honoraires à la charge de l'acquéreur (Prix hors honoraires : 0 euros).
Les charges de location sont prévisionnelles mensuelles avec régularisation annuelle.
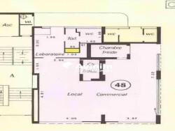
Sur Paris 13ème, proche métro Glacière, avenue commerçante, je vous propose à la location, ce local commercial de 63 m² au total dont un espace en sous-sol (cave) de 10 m² pouvant être relié, offrant une belle visibilité en angle. Place de parking livraison devant le local
Localisation :
Rue Glacière 300m du métro ligne 6 « Glacière » Environnement : Environnement résidentiel dense Environnement commerçant : Tabac, Boulangerie, Pâtisserie fine, Pharmacie, Epicerie, Bazar, supermarché, école maternelle, Hôtels Marriott
Caractéristiques techniques :
Pied d'immeuble en angle Beaux linéaires de 14mL (7mL x 2) 2 accès ( rue et arrière bâtiment) Chambre froide Sanitaires (WC et lave-mains) Surface totale : 63 m²RDC : 53 m² Sous-sol : 10 m²
Activités autorisées : toutes activités sauf restauration avec extraction
Conditions financières Location :
Loyer de 24.000/HT/HC/AN soit 2.000/HT/HC/mois Provisions charges : 4440/HT/HC/AN soit 370/HT/HC/mois (à réajuster) Type de Bail : Bail commercial 3/6/9 ans Taxe Foncière : 537/an (en 2025) Dépôt de garantie: 3 mois de loyers HC Honoraires d'agence (charge preneur) : 30% Loyer annuel , soit 7.200 HT
Ce bien vous est présenté par Nathalie LOUISY, 0634372443, consultant au sein du cabinet Avinim RÉSEAU BROKERS®?.
AVINIM RESEAU BROKERS est le premier cabinet immobilier d'entreprise structuré en réseau de mandataires. Nous maillons avec notre équipe de 80 Brokers une grande partie du territoire national pour accompagner nos entreprises clientes dans leurs recherches de commerces, bureaux, locaux d'activités, immeubles et fonciers. www.reseau-brokers.com
Provision sur charges 370 /mois, régularisation annuelle. DPE en cours. Les informations sur les risques auxquels ce bien est exposé sont disponibles sur le site Géorisques : georisques.gouv.fr.