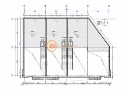
<p>En EXCLUSIVITE, l'agence CONSULTIMO vous présentes trois cellules de locaux commerciaux avec vitrine à louer sur le secteur de Camblanes et Meynac. Situés en première ligne de la D10, ces trois cellules bénéficient d'une excellente visibilité sur un axe emprunté par plus de 25 000 véhicules/jour. Ces locaux commerciaux seront mis à disposition brut de béton avec gaines en attente, disposeront d'une vitrine et de bureaux en mezzanine. Le loyer est de l'ordre de 175Euros HT et HC /m²/an. Le lot 1 est d'une surface développée de 121m² dont 42m² en mezzanine, le lot 2 d'une surface de 112m² dont 39m² en mezzanine et le lot 3 d'une surface de 198 m² dont 69m² en mezzanine. Seront affectées à ces lots, des places de parking privatives. Ces locaux seront disponibles au premier trimestre 2026. Des honoraires de l'ordre de 20% du loyer annuel HT et HC seront à prévoir.</p><p>Accueil téléphonique du lundi au samedi de 8h à 19h.</p><p>#RV</p>
- Type de bail : Commercial
- Durée : 3/6/9 ans
- Préavis : 6 mois
- Fiscalité : TVA
- Indice : ILC
- Indexation : Annuelle, date prise effet
- Dépôt de garantie : 2 mois HT/HC
- Loyers et charges : Mensuels et d'avance
121 m²
Contact Naud Jean Philippe
Contacter gratuitement à l'aide du formulaire ci-dessous.