Local commercial à vendre - Chambéry / Proche gare
Chambéry 73000
0
Honoraires à la charge du vendeur.
Disponible à l'acquisition, dans le centre de Chambéry le long du boulevard Gambetta (proche de la gare), un local commercial d'une surface totale de 152,50m² en rez-de-chaussée d'un immeuble résidentiel.
Les locaux sont vendus avec 4 stationnements privatifs situés dans la cour intérieur de la copropriété.
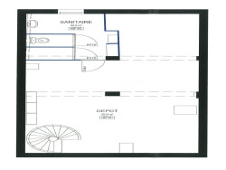
VOIR PLANS EN PHOTOS
Répartitions des surfaces : - RDC : 102m², - Réserve et sanitaires en sous-sol : 50,5m².
Destinations possibles : bureaux et activités commerciales sans nuisances (restauration / bar non-autorisé).
RESEAU BROKERS® est le premier cabinet immobilier d'entreprise structuré en réseau de mandataires. Nous maillons avec notre équipe de 80 Brokers une grande partie du territoire national pour accompagner nos entreprises clientes dans leurs recherches de commerces, bureaux, locaux d'activités, immeubles et fonciers. www.reseau-brokers.com
Honoraires à la charge du vendeur. DPE en cours. Les informations sur les risques auxquels ce bien est exposé sont disponibles sur le site Géorisques : georisques.gouv.fr.