Situé au coeur de Floirac, sur une rue commerçante dynamique, découvrez ce local commercial d'environ 210 m², bénéficiant d'un important linéaire de façade, offrant une excellente visibilité pour toute activité professionnelle.
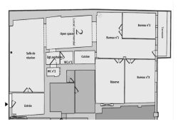
Le bien se compose d'un vaste open-space, idéal pour un espace de vente ou d'accueil clientèle, complété par plusieurs bureaux indépendants, une salle de réunion, une réserve, ainsi qu'un espace cuisine et des sanitaires, permettant une organisation fonctionnelle et adaptée à différents projets.
Grâce à sa configuration, ce local offre de nombreuses possibilités d'aménagement : commerce, showroom, activité tertiaire, profession libérale ou bureaux.Un espace extérieur type terrasse vient également compléter l'ensemble, apportant un véritable confort d'usage.
Implanté dans un environnement commerçant et passant, ce bien constitue une opportunité idéale pour développer ou implanter votre activité.
Prix de vente : 400 000 HT 480 000 TTC
Un local modulable et visible, offrant un fort potentiel dans un secteur en plein essor.
Honoraires à la charge du vendeur. Dans une copropriété de 5 lots. Aucune procédure n'est en cours. Classe énergie A, Classe climat A. Les informations sur les risques auxquels ce bien est exposé sont disponibles sur le site Géorisques : georisques.gouv.fr.
202 m²
1 980 €
4
Oui (5 lots)
Consommations énergétiques
Logement économe
33
Logement énergivore (kWhEP/m2/an)
Émissions de gaz à effet de serre
Faible émission de GES
1
Forte émission de GES(kgeqCO2/m2/an)
Contact Mathieu AUBERT
Contacter gratuitement à l'aide du formulaire ci-dessous.