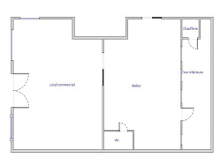
Un projet de commerce ? De cabinet ? Ce local commercial de 228m2 situé avenue Charles de Gaulle saura vous séduire par sa superficie et son emplacement, Situé dans une résidence de 1990, il se compose d'un magasin de 130m2 avec vitrine de 10m linéaire, d'un atelier de 98m2 avec wc et d'une grande cours privative de 52m2, A personnaliser et rénover entièrement selon projet, Plus d'informations sur demande. Prix ouvert à discussion. Cette annonce vous est proposée par TASSIE Amandine - EI - NoRSAC: 815 408 315, Enregistré à Greffe du tribunal de commerce de RODEZ - Annonce rédigée et publiée par un Agent Mandataire -
228 m²
961 €
2
1990
Oui (24 lots)
Consommations énergétiques
Logement économe
77
Logement énergivore (kWhEP/m2/an)
Émissions de gaz à effet de serre
Faible émission de GES
10
Forte émission de GES(kgeqCO2/m2/an)
Contact Amandine TASSIE
Contacter gratuitement à l'aide du formulaire ci-dessous.