LOCAL COMMERCIAL DE 139M² AVEC HABITATION AU DESSUS
Mareuil-Caubert 80132
0
Laurent Jacquet propose à la vente un local commercial avec logement à l'étage, idéalement situé sur un axe passant, à la sortie d'Abbeville en direction de Huppy, à proximité de l'autoroute A28, sur la commune de Mareuil-Caubert.
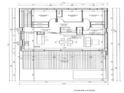
Ce local, avec accès PMR, était exploité en pharmacie. Il offre une surface d'environ 140 m²et ne comporte aucun mur porteur (uniquement quatre poutres). Il se compose de plusieurs espaces : zone de vente, zone de stockage, bureaux, sanitaires ainsi qu'un espace drive.
Une entrée indépendante donne accès à l'étage, où se trouve une habitation de 90 m² à terminer, prévue pour trois chambres, avec une terrasse de 45 m².
À l'extérieur, une allée avec places de stationnement à finaliser, contourne le bâtiment et permet l'accès au drive. L'ensemble est édifié sur un terrain d'environ 3 150 m².
Cette annonce référence 308492 vous est présentée par votre agent commercial BSK Immobilier LAURENT JACQUET (EI) immatriculé au RSAC de AMIENS (80000) sous le numéro 95248501900014.
Prix du bien : 354 000,00 €
Les honoraires d'agence sont à la charge du vendeur.
Les informations sur les risques auxquels ce bien est exposé sont disponibles sur le site Géorisques : www.georisques.gouv.fr
3151 m²
112 €
2
2016
Contact JACQUET LAURENT
Contacter gratuitement à l'aide du formulaire ci-dessous.