Honoraires à la charge de l'acquéreur (Prix hors honoraires : 700000 euros).
A VENDRE - LOCAL D'ACTIVITE - 804 M2 - QUIMPERLE / MELLAC
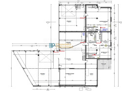
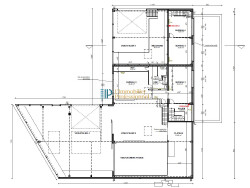
Au coeur de la zone artisanale et commerciale de Kervidanou, à la vente, un bâtiment à usage commercial et artisanal de 804 m² environ comprenant : Sur la gauche un hall d'exposition avec bureau à l'étage et trois bureaux au rez de chaussée, une zone atelier avec réserve et chambre froide, espace vestiaire/sanitaires et deux mezzanines. Une cour fermée avec zone couverte de stockage. Sur la droite un hall d'exposition, deux bureaux à l'étage, sanitaire, une zone atelier avec mezzanine. Parcelle entièrement clôturée d'une surface de 2 845 m².
Possibilité de diviser en 2 lots Lot N° 1 comprenant 111 m² de bureaux 90 m² d'atelier + 42 m² de mezzanine environ Lot N° 2 comprenant 172 m² de bureaux + atelier et chambre froide pour 380 m² environ
Classe énergie A, Classe climat A. Les informations sur les risques auxquels ce bien est exposé sont disponibles sur le site Géorisques : georisques.gouv.fr. . Les informations sur les risques naturels, miniers, ou technologiques, auxquels ces biens sont exposés, sont disponibles sur le site www.georisques.gouv.fr
Local d'activités
804 m²
932 €
7 %
8
Contact Vincent BATTAIS
Contacter gratuitement à l'aide du formulaire ci-dessous.