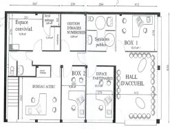
Local de 110 m² de plain pied en centre ville de Mende à usage de bureaux comprenant un hall accueil, 4 bureaux, une salle de repos, une salle photocopies et un espace sanitaire. Idéal professions libérales. Proche de toutes commodités.
Honoraires à la charge du vendeur. Classe énergie E, Classe climat B. Les informations sur les risques auxquels ce bien est exposé sont disponibles sur le site Géorisques : georisques.gouv.fr.
110 m²
1 273 €
Consommations énergétiques
Logement économe
276
Logement énergivore (kWhEP/m2/an)
Émissions de gaz à effet de serre
Faible émission de GES
9
Forte émission de GES(kgeqCO2/m2/an)
Contact Jérémy BERGONHE
Contacter gratuitement à l'aide du formulaire ci-dessous.