29280 - PLOUZANE - LOCAL A LOUER
Efficity, vous propose ce local à louer idéalement placé à Plouzané.
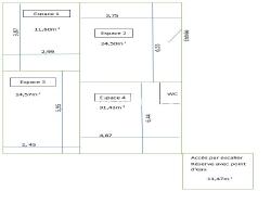
D'une surface de 94m² il se compose :
- un espace de 83m2
- un local de stockage avec point d'eau de 11m2
Qualité de l'emplacement : Le local bénéficie d'un flux intéressant de clientèle et d'une excellente visibilité. Stationnement aisé.
Fort potentiel de croissance.
Loyer mensuel: 1250€
Bail 3/6/9
Dépôt de garantie : 1 mois HC
Les informations sur les risques auxquels ce bien est exposé sont disponibles sur le site Georisque : georisques. gouv. fr
Caroline Esteve Y Bayona - EI - est Agent Commercial mandataire en immobilier, immatriculé au Registre Spécial des Agents Commerciaux du Tribunal de Commerce de Brest sous le n°847730835.
Siège social du mandant : effiCity, 48 avenue de Villiers - 75017 PARIS - Société par Actions Simplifiée, société au capital de 132 373,05 euros, immatriculée au RCS Paris 497 617 746 et titulaire de la Carte professionnelle CPI 7501 2015 000 002 025 - CCI Paris IDF - Caisse de Garantie : GALIAN Assurances 89 rue de la Boétie 75008 Paris
94 m²
4
Consommations énergétiques
Logement économe
260
Logement énergivore (kWhEP/m2/an)
Émissions de gaz à effet de serre
Faible émission de GES
8
Forte émission de GES(kgeqCO2/m2/an)
Contact Mme Caroline Esteve Y Bayona
Contacter gratuitement à l'aide du formulaire ci-dessous.