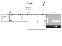
Karika Immobilier vous propose à la location ce local d'activité à Puget sur Argens. Situé au coeur d'une zone d'activité, ce bien totalise une surface de 880 mètres carrés au sol. Il bénéficie d'une hauteur sous plafond de 8 mètres et d'une dalle lissée 'à l'hélicoptère' charges lourdes. Ce local dispose de cinq quais de déchargement dont trois typés véhicules poids lourds avec niveleurs. Traversant sur la longueur, ce bien est équipé de cinq portes sectionnelles motorisées. Un espace bureaux sur deux niveaux complète l'ensemble et comprend une cuisinette ainsi qu'un bloc sanitaire. Ce bien s'adresse à tout type d'activité industrielle, commerciale ou artisanale et jouit d'un emplacement stratégique. Accès poids lourds confortable, proximité des grands axes et du centre-ville. Informations sur simple demande. Les informations sur les risques auxquels ce bien est exposé sont disponibles sur le site Géorisques : www.georisques.gouv.fr
Local d'activités
880 m²
27000 %
2012
Oui
Oui
Contact Karika Immobilier
Contacter gratuitement à l'aide du formulaire ci-dessous.